- AML-1186
- ID на оферта
- 2-стаен
- Тип имот
- Тухла
- Вид строителство
- 2300
- Цена кв.м.
- 2028
- Година на строеж
Описание
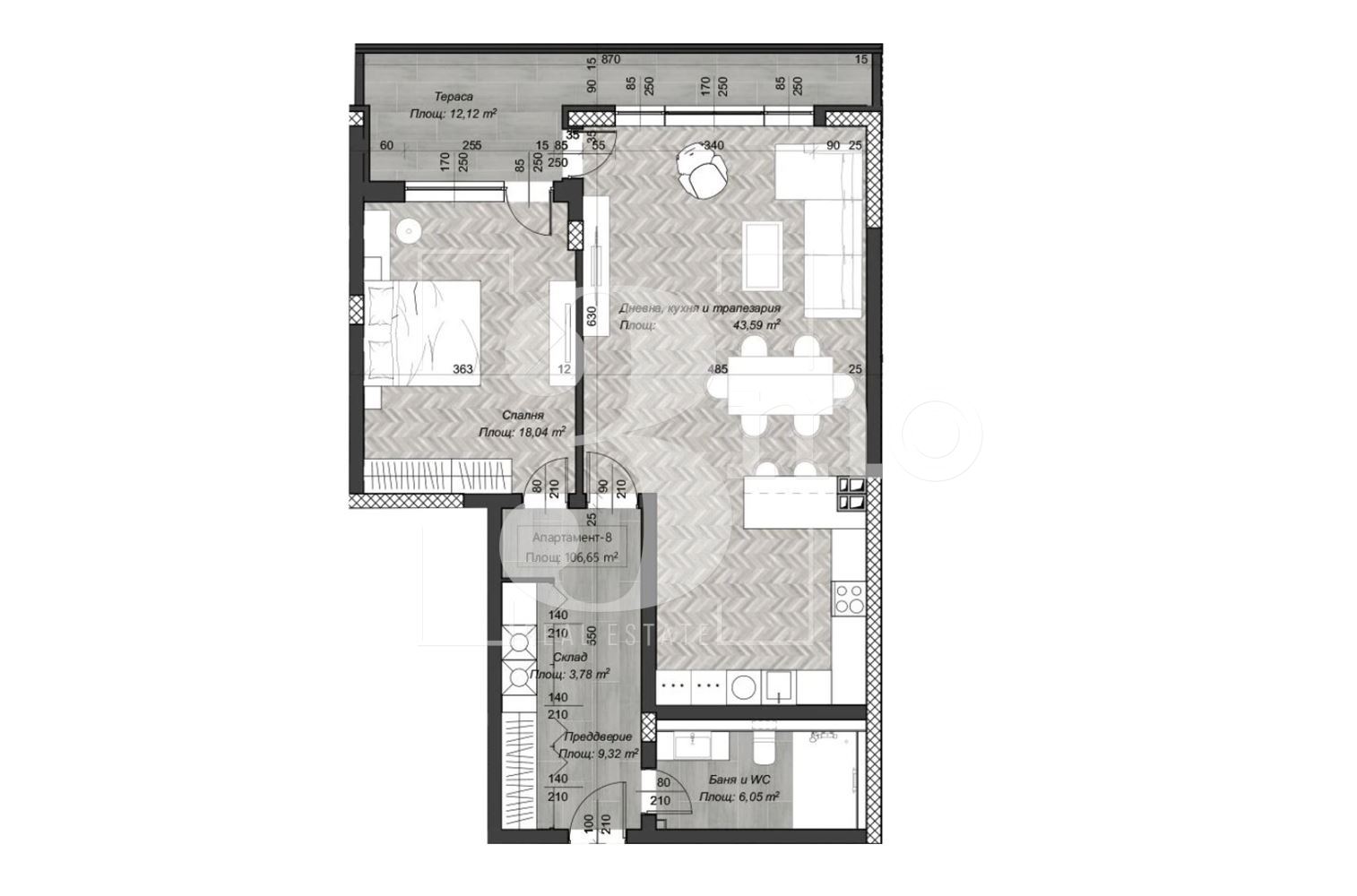
3mo Амалтея продава двустаен тухлен апартамент в строеж, разположен на трети етаж в четиринадесететажна модерна сграда в широк център на столицата. Имотът е с обща площ от 125,75 кв.м. и застроена 106,65 кв.м. Жилището предлага функционално разпределени помещения: входно антре (9,32 кв.м.) със склад (3,78 кв.м.), дневна с кухня и трапезария (43,59 кв.м.) с тераса (12,12 кв.м.), просторна спалня (18,04) и баня с тоалетна (6,05 кв.м.). Апартаментът е с изцяло източно изложение. В същата сграда продаваме и други апартаменти.
Спецификации на имота:
- Отоплението е чрез електричество с изводи за климатици. По желание на клиента е възможно отопление на термопомпа;
- Фасадното остъкляване осигурява максимално естествено осветление във всяко жилищно помещение. Немски алуминиев профил Schüco с троен стъклопакет;
- Зидария от керамични тухли с дебелина 25см и 12см от Wienerberger;
- Входните пространства са маркирани с декоративна рамка с облицовка от камък;
- Партерът е с финиш от еталбонд, който ествствено преминава през декоративните слънцезащитни елементи във височина до декоративния профил, който рамкира обществената зона;
- Външна мазилка – хоризонтали от светъл цвят - за бордовете на терасите и парапетите; тъмен цвят – по цялата фасада във вътрешността;
- Тъмен лакобел – който допълнително подчертава вертикалите;
- Декоративни решетки;
- Предпазен парапет от композитен материал с мин H=120см от готов под.
Съществува възможност за покупка на гараж или паркомясто в същата сграда с автоматизирана система за достъп с дистанционно управление. Стълбищните ядра са отделени от зоната за автомобили с пожарозащитни врати.
Сградата е с издадено разрешение за строеж и стартирало строителство. Планирано разрешение за ползване през 2028-ма година.
Инвеститорът е с безупречна репутация и дълги години опит в строителството.
Сградата е разположена на отлична локация в непосредствена близост до ул. Одрин, спирки на градски транспорт, метростанция Константин Величков, училище, детска градина, парк, пазар, заведения и ресторанти. Връзката с централната и други части на столицата се осъществява посредством бул.Сливница, бул.Инж. Иван Иванов и бул.Тодор Александров. Имотът е подходящ, както за живеене, така и за инвестиция.
3mo Амалтея, съвместно с лицензирания в БНБ кредитен посредник КРЕДИТ НАВИГАТОР, предоставят на своите клиенти възможност да изберат най-изгодния ипотечен кредит при закупуване на своето жилище. Услугата е БЕЗПЛАТНА
Оферта № 1186
Детайли
-
№ на имот AML-1186
-
Цена €289,225/565,675 лв.
-
Квадратура 126 m²
-
Спалня 1
-
Стаи 2
-
Година на строеж 2028
-
Тип имот 2-стаен
-
Етаж 3
-
Етажи 14
-
Обзавеждане Необзаведен
-
Вид строителство Тухла
-
Цена кв.м. 2300
-
Отопление Електричество
-
Ново строителство Да
-
Балкони (бр.) 1
-
Баня с тоалетна (бр.) 1
Лихвен калкулатор
Изчислете вашите месечни ипотечни плащания бързо и лесно с нашия лихвен калкулатор. Въведете общата сума на заема, първоначалното плащане, лихвения процент и срока на заема, за да получите точна прогноза за вашите месечни разходи.
-
Първоначално плащане
-
Размер на заема
-
Месечно плащане
Това е примерен калкулатор. За индивидуална оферта се свържете с нас!
- Аделина Ванчева
- avancheva@zaimota.com
- 0885923239
Подобни имоти
Многостаен апартамент за продажба в ж. к. Модерно предградие, гр. София
- €180,000/352,049 лв.
- ID: AML-1417
- Стаи: 4
- Легла: 3
- Вана: 0
Двустаен апартамент с потенциал в кв. Оборище, град София
- €207,999/406,811 лв.
- ID: AML-1307
- Стаи: 2
- Легло: 0
- Вана: 0
Продава двустаен апартамент с голяма тераса в затворен комплекс в ж.к. Люлин-5, София
- €141,568/276,883 лв.
- ID: AML-1410
- Стаи: 2
- Легло: 1
- Вана: 0
Просторен и слънчев двустаен апартамент за проздажба.
- €149,900/293,179 лв.
- ID: AML-1250
- Стаи: 2
- Легло: 1
- Вана: 0
Просторен пентхаус с четири спални, разположен в елегантен бутиков комплекс в град София
- €396,799/776,071 лв.
- ID: AML-941
- Стаи: 6
- Легла: 4
- Вана: 0
3mo недвижими имоти продава четиристаен луксозен апартамент в кв. Витоша, София
- €399,000/780,376 лв.
- ID: AKD-50
- Стаи: 4
- Легла: 3
- Вани: 3
Contact me



