Двустаен апартамент с южно изложение в сграда пред Акт 15 в ж.к. Люлин, град София

  • €117,500/229,810 лв.

Двустаен апартамент с южно изложение в сграда пред Акт 15 в ж.к. Люлин, град София

  • €117,500/229,810 лв.
  • AML-748
  • ID на оферта
  • 2-стаен
  • Тип имот
  • Тухла
  • Вид строителство
  • 1554
  • Цена кв.м.
  • 2026
  • Година на строеж

Описание

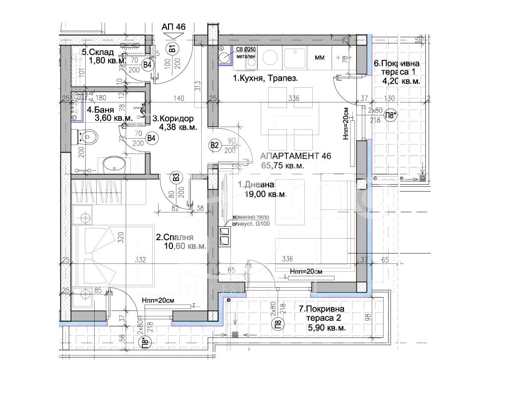
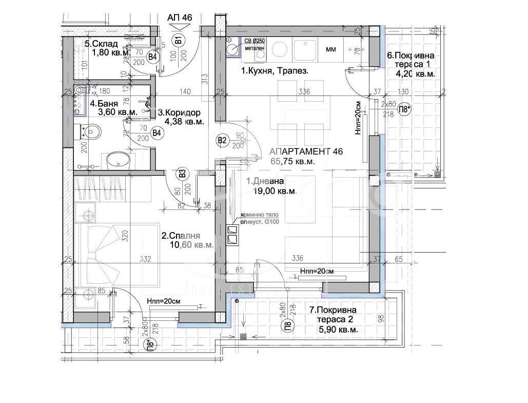
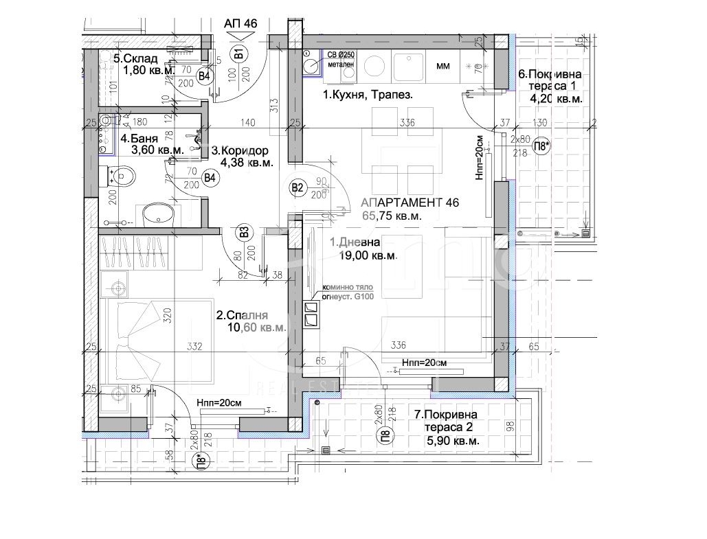
3mo Амалтея има удоволствието да Ви предложи двустаен светъл апартамент разположен е в нова модерна сграда пред Акт 15 в ж.к. „Люлин“ 5 в столицата. Планиран Акт 16 в началото на 2026-та година. Предложеният имот е с обща площ от 75,59 кв.м. (застроена 65,75 кв.м.) и се състои от: коридор (4,38 кв.м.), всекидневна с кухненски бокс и трапезария (17,65 кв.м.) с излаз на тераса (4,20 кв.м.), спалня (10,32 кв.м.), втора тераса (5,90 кв.м.), складово помещение (1,80 кв.м.) и санитарно помещение (3,60 кв.м). Жилището е разположено на девети от общо десет етажа с изложение юг и изток. От имота се разкрива чудесна панорама. Продава се в степен на завършеност по БДС с монтирана входна врата, поставена дограма, изградена домофонна инсталация и интернет окабеляване. Има опция за индивидуална оферта от инвеститора за довършителни работи и обзавеждане. Сградата разполага с подземни гаражи и надземни паркоместа, които могат да се закупят отделно. Възможни са различни схеми на плащане. В проекта са вложени висок клас материали с модерно изпълнение на общите части и елегантна фасада. Инвеститорът е с дългогодишен опит в строителството. В близост до имота са разположени множество и най-различни търговски, хранителни и денонощни магазини и обекти. Също така детска градина, училище и спирки на градски транспорт с бърз превоз до метростанции Люлин, Западен парк и Сливница. Връзката с централната и други части на столицата се осъществява посредством бул. Добринова скала , бул. Райко Даскалов, бул. Петър Дертлиев и Околовръстен път. 

Оферта № 748

3mo Амалтея, заедно с лицензирания в БНБ кредитен посредник КРЕДИТ НАВИГАТОР предоставят на своите клиенти възможност да изберат най-изгодният ипотечен кредит при закупуване на своето жилище. Услугата е БЕЗПЛАТНА.

Детайли

  • № на имот AML-748
  • Цена €117,500/229,810 лв.
  • Квадратура 76 m²
  • Спалня 1
  • Стаи 2
  • Година на строеж 2026
  • Тип имот 2-стаен
  • Етаж 9
  • Етажи 10
  • Обзавеждане Необзаведен
  • Вид строителство Тухла
  • Цена кв.м. 1554
  • Отопление ТЕЦ
  • Ново строителство Да
  • Балкони (бр.) 2
  • Баня с тоалетна (бр.) 1

Лихвен калкулатор

Изчислете вашите месечни ипотечни плащания бързо и лесно с нашия лихвен калкулатор. Въведете общата сума на заема, първоначалното плащане, лихвения процент и срока на заема, за да получите точна прогноза за вашите месечни разходи.

Това е примерен калкулатор. За индивидуална оферта се свържете с нас!

Заяви оглед

Тип оглед

Подобни имоти

Сравни имоти

Сравни

Вземете Вашата индивидуална оферта

Нашите експерти ще се свържат с вас, за да ви предложат най-добрите условия за ипотечен кредит, съобразени с вашите изисквания и финансови възможности.

Кредитиране индивидуална оферта
%