Двустаен слънчев апартамент за продажба в нова сграда в ж.к. Люлин, град София
- €175,240/342,740 лв.
- AML-455
- ID на оферта
- 2-стаен
- Тип имот
- Тухла
- Вид строителство
- 1991
- Цена кв.м.
- 2026
- Година на строеж
Описание
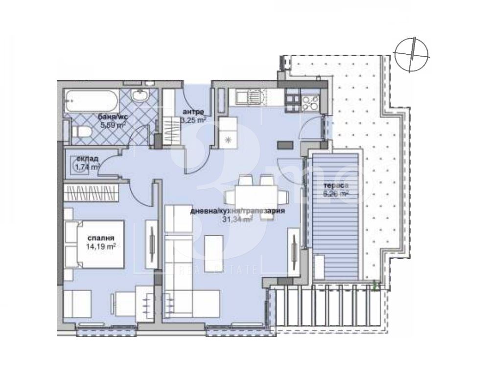
3mo Амалтея продава двустаен апартамент в жилищна сграда пред Акт 14 в ж.к. Люлин 6. Предложеният имот е с обща площ от 87,62 кв.м. (застроена 74,55 кв.м.) и се състои от: входно антре (3,25 кв.м.), всекидневна с кухненски бокс и трапезария (31,34 кв.м.) с излаз на тераса (5,26 кв.м.), южна спалня (14,19 кв.м.), складово помещение (1,74 кв.м.) и баня с тоалетна (5,59 кв.м.). Апартаментът е разположен на пети от общо девет етажа. Има изложение юг и изток.
Жилищната сграда се намира в начален етап на строителство. Планирано Разрешение за ползване 2026 година.
Апартаментът е подходящ, както за живеене, така и за инвестиция. Към него може да се закупи паркомясто или гараж.
Инвеститорът на проекта има дългогодишен опит в строителството на жилищни сгради в град София. В строителството използва материали от висок клас и съвременни технологии на изпълнение.
Локацията на сградата е отлична. Намира се в непосредствена близост до Западен парк, което предоставя отлична възможност за организиране на ежедневни разходки в парка. От прозорците на сградата се открива красива гледка към планината Витоша. Районът има добри транспортни връзки и отлична инфраструктура. За повече информация и организиране на огледи, моля свържете се с нас на посочените телефони!
Оферта № 455
3mo Амалтея, заедно с лицензирания в БНБ кредитен посредник КРЕДИТ НАВИГАТОР предоставят на своите клиенти възможност да изберат най-изгодния ипотечен кредит при закупуване на своето жилище. Услугата е БЕЗПЛАТНА.
Детайли
-
№ на имот AML-455
-
Цена €175,240/342,740 лв.
-
Квадратура 88 m²
-
Спалня 1
-
Стаи 2
-
Година на строеж 2026
-
Тип имот 2-стаен
-
Етаж 5
-
Етажи 9
-
Обзавеждане Необзаведен
-
Вид строителство Тухла
-
Цена кв.м. 1991
-
Отопление ТЕЦ
-
Ново строителство Да
-
Балкони (бр.) 1
-
Баня с тоалетна (бр.) 1
Лихвен калкулатор
Изчислете вашите месечни ипотечни плащания бързо и лесно с нашия лихвен калкулатор. Въведете общата сума на заема, първоначалното плащане, лихвения процент и срока на заема, за да получите точна прогноза за вашите месечни разходи.
-
Първоначално плащане
-
Размер на заема
-
Месечно плащане
Това е примерен калкулатор. За индивидуална оферта се свържете с нас!
- Аделина Ванчева
- avancheva@zaimota.com
- 0885923239
Подобни имоти
Многостаен апартамент за продажба в ж. к. Модерно предградие, гр. София
- €180,000/352,049 лв.
- ID: AML-1417
- Стаи: 4
- Легла: 3
- Вана: 0
Двустаен апартамент с потенциал в кв. Оборище, град София
- €207,999/406,811 лв.
- ID: AML-1307
- Стаи: 2
- Легло: 0
- Вана: 0
Продава двустаен апартамент с голяма тераса в затворен комплекс в ж.к. Люлин-5, София
- €141,568/276,883 лв.
- ID: AML-1410
- Стаи: 2
- Легло: 1
- Вана: 0
Просторен и слънчев двустаен апартамент за проздажба.
- €149,900/293,179 лв.
- ID: AML-1250
- Стаи: 2
- Легло: 1
- Вана: 0
Просторен пентхаус с четири спални, разположен в елегантен бутиков комплекс в град София
- €396,799/776,071 лв.
- ID: AML-941
- Стаи: 6
- Легла: 4
- Вана: 0
3mo недвижими имоти продава четиристаен луксозен апартамент в кв. Витоша, София
- €399,000/780,376 лв.
- ID: AKD-50
- Стаи: 4
- Легла: 3
- Вани: 3
Contact me


