- AML-1357
- ID на оферта
- 2-стаен
- Тип имот
- Тухла
- Вид строителство
- 2639
- Цена кв.м.
Описание
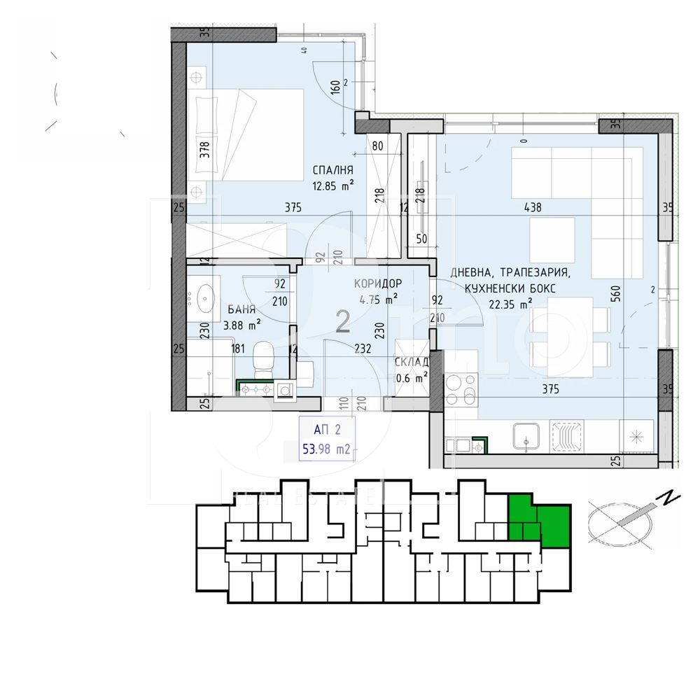
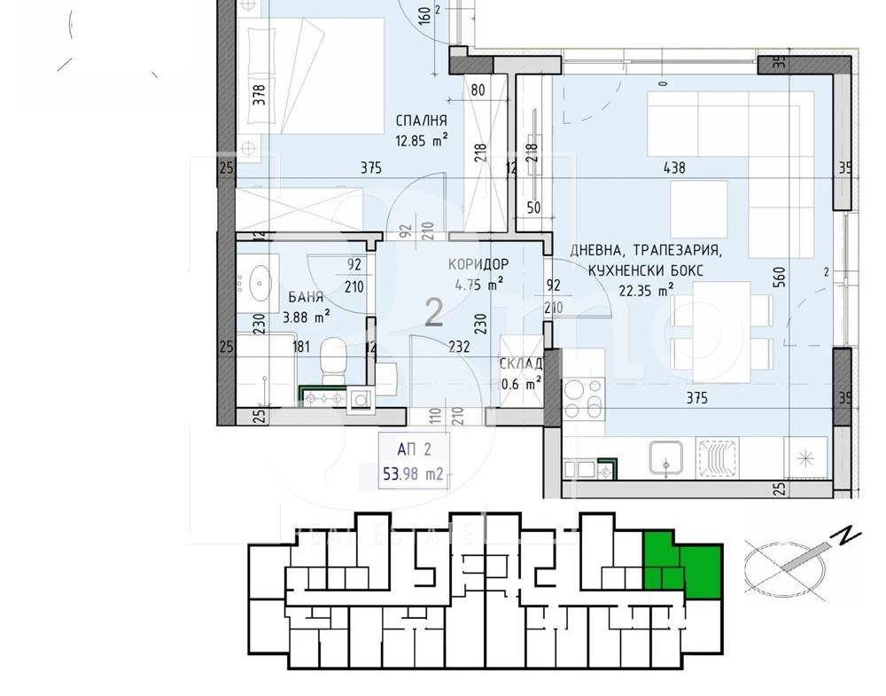
3mo Амалтея предлага за продажба двустаен тухлен апартамент на партерен етаж, в новострояща се луксозна жилищна сграда в ж.к. Малинова долина, в близост до бул. Околовръстен път.
РЗП на апартамента - 61 кв.м. и ЗП 54 кв.м.+86 кв.м. двор. Разпределението на апартамента е както следва: просторен хол с кухненски бокс и трапезария , спалня , двор, баня с тоалетна, склад.
Апартаментът се издава на шпакловка и замазка с троен стъклопакет PVC дограма в цвят антрацид, висок клас блиндирана входна врата с модерен дизайн в цвят сив дъб. . Сградата има луксозни общи части и асансьор от висок клас с марка ORONA. Има видео наблюдение и контрол на достъп.
Сградата разполага с общо 39 апартамента, всеки от които е със светли и функционални помещения. Има възможност за покупка на гараж или паркомясто. Към сградата ще има богато озеленена градина с обособени зони за отдих, детска площадка и заграждение за кучета.
Кварталът се намира в южната част на София, в подножието на планината. Сградите са с отлично местоположение. В непосредствена близост са разположени молове, хипермаркети, детска градина. Налична е бърза транспортна връзка с главни столични булеварди.
Етап на строителство - Разрешение за строеж .
Цената на имота е съобразена със схемата на плащане.
За повече информация се обадете на тел: 0889984448
Получете най-добрата оферта за ипотечен кредит с Агенция ТРИМО и лицензиран кредитен посредник КРЕДИТ НАВИГАТОР. Услугата е безплатна.
Детайли
-
№ на имот AML-1357
-
Цена €160,953/314,797 лв.
-
Квадратура 61 m²
-
Спалня 1
-
Стаи 2
-
Тип имот 2-стаен
-
Етажи 4
-
Вид строителство Тухла
-
Цена кв.м. 2639
-
Балкони (бр.) 1
-
Баня с тоалетна (бр.) 1
Екстри
Лихвен калкулатор
Изчислете вашите месечни ипотечни плащания бързо и лесно с нашия лихвен калкулатор. Въведете общата сума на заема, първоначалното плащане, лихвения процент и срока на заема, за да получите точна прогноза за вашите месечни разходи.
-
Първоначално плащане
-
Размер на заема
-
Месечно плащане
Това е примерен калкулатор. За индивидуална оферта се свържете с нас!
- Славка Лазарова
- slazarova@zaimota.com
- 0876841074
Подобни имоти
Многостаен апартамент за продажба в ж. к. Модерно предградие, гр. София
- €180,000/352,049 лв.
- ID: AML-1417
- Стаи: 4
- Легла: 3
- Вана: 0
Двустаен апартамент с потенциал в кв. Оборище, град София
- €207,999/406,811 лв.
- ID: AML-1307
- Стаи: 2
- Легло: 0
- Вана: 0
Продава двустаен апартамент с голяма тераса в затворен комплекс в ж.к. Люлин-5, София
- €141,568/276,883 лв.
- ID: AML-1410
- Стаи: 2
- Легло: 1
- Вана: 0
Просторен и слънчев двустаен апартамент за проздажба.
- €149,900/293,179 лв.
- ID: AML-1250
- Стаи: 2
- Легло: 1
- Вана: 0
Просторен пентхаус с четири спални, разположен в елегантен бутиков комплекс в град София
- €396,799/776,071 лв.
- ID: AML-941
- Стаи: 6
- Легла: 4
- Вана: 0
3mo недвижими имоти продава четиристаен луксозен апартамент в кв. Витоша, София
- €399,000/780,376 лв.
- ID: AKD-50
- Стаи: 4
- Легла: 3
- Вани: 3
Contact me
