- AML-1052
- ID на оферта
- 3-стаен
- Тип имот
- Тухла
- Вид строителство
- 2233
- Цена кв.м.
- 2025
- Година на строеж
Описание
3mo Амалтея продава тристаен апартамент в нова сграда с Разрешение за ползване в ж.к. Люлин 2, микрорайон с отлична инфраструктура.
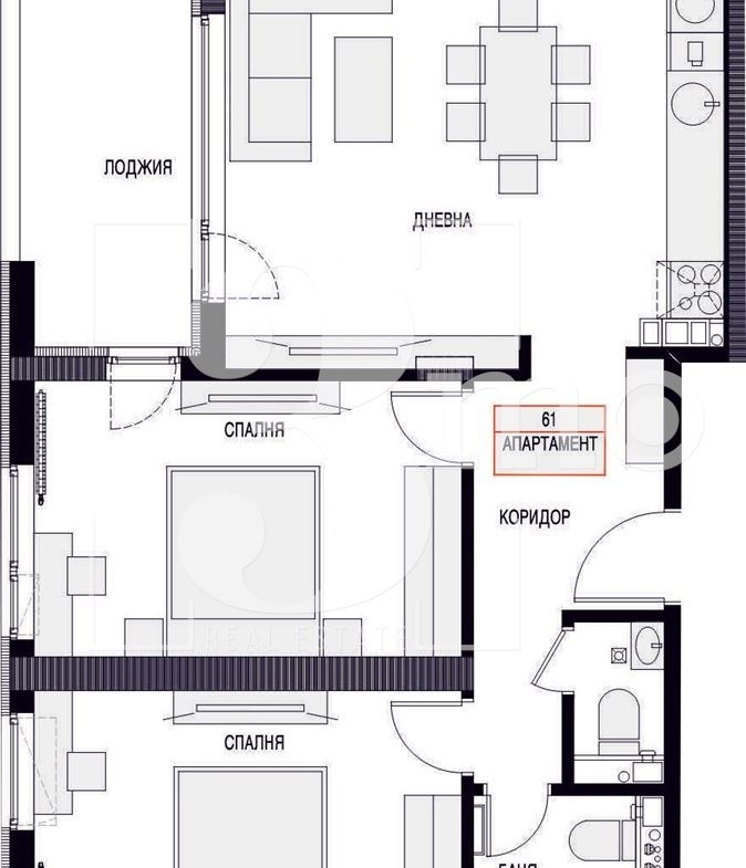
Жилището е с изключително функционално разпределение и се състои от просторна дневна с трапезария и кухненски бокс, две непреходни спални, две сервизни помещения и тераса. Квадратурата е 99 кв.м. с общи части и 83 кв.м. чиста площ. Апартаментът е със западно изложение и се намира на дванадесети етаж.
Издава се на фина шпакловка и замазка с блиндирана входна врата, петкамерна PVC дограма с монтиран двоен стъклопакет. Отоплението е на ТЕЦ. Има възможност за покупка на подземно паркомясто. Общите части са луксозно изпълнени с окачени тавани и светло сиви гранитни плочи. За удобство на собствениците са монтирани два високоскоростни асансьора марка ORONA. Контролът на достъп ще се осъществява с индивидуален чип и видео домофонна инсталация. Във всеки апартамент е предвиден видео домофон със слушалка, звънец и звънчев бутон. Сградата разполага със собствен двор, с много зеленина и места за почивка.
Местоположението на сградата е в близост до метростанция, градски транспорт, множество търговски обекти, банкови офиси, детски градини и училища.
3mo Амалтея, заедно с лицензирания в БНБ кредитен посредник КРЕДИТ НАВИГАТОР, предоставят на своите клиенти възможност да изберат най-изгодния ипотечен кредит при закупуване на своето жилище. Услугата е БЕЗПЛАТНА.
Оферта № 1052
Детайли
-
№ на имот AML-1052
-
Цена €227,806/445,550 лв.
-
Квадратура 102 m²
-
Година на строеж 2025
-
Тип имот 3-стаен
-
Етаж 11
-
Етажи 16
-
Вид строителство Тухла
-
Цена кв.м. 2233
-
Отопление ТЕЦ
Лихвен калкулатор
Изчислете вашите месечни ипотечни плащания бързо и лесно с нашия лихвен калкулатор. Въведете общата сума на заема, първоначалното плащане, лихвения процент и срока на заема, за да получите точна прогноза за вашите месечни разходи.
-
Първоначално плащане
-
Размер на заема
-
Месечно плащане
Това е примерен калкулатор. За индивидуална оферта се свържете с нас!
- Славка Лазарова
- slazarova@zaimota.com
- 0876841074
Подобни имоти
Магазин за отдаване под наем на партер в ж.к. Люлин център, гр. София
- €700/1,369 лв.
- ID: AML-1474
- Стаи: 3
- Легло: 0
- Вана: 0
Двустаен апартамент с потенциал в кв. Оборище, град София
- €207,999/406,811 лв.
- ID: AML-1307
- Стаи: 2
- Легло: 0
- Вана: 0
Тристаен непреходен апартамент за продажба . ж.к. Надежда 1, гр.София
- €189,000/369,652 лв.
- ID: AML-1438
- Стаи: 3
- Легла: 2
- Вана: 1
Обзаведен тристаен апартамент под наем в. ж. к. Люлин 8, гр. София
- €550/1,076 лв.
- ID: AML-1434
- Стая: 0
- Легло: 0
- Вана: 0
Многостаен апартамент за продажба в ж. к. Модерно предградие, гр. София
- €180,000/352,049 лв.
- ID: AML-1417
- Стаи: 4
- Легла: 3
- Вана: 0
Двустаен апартамент за продажба в ж.к.Люлин 2, гр.София
- €146,800/287,116 лв.
- ID: AML-1385
- Стаи: 3
- Легло: 1
- Вана: 0
Contact me











