- AML-880
- ID на оферта
- 3-стаен
- Тип имот
- Тухла
- Вид строителство
- 1900
- Цена кв.м.
- 2027
- Година на строеж
Описание
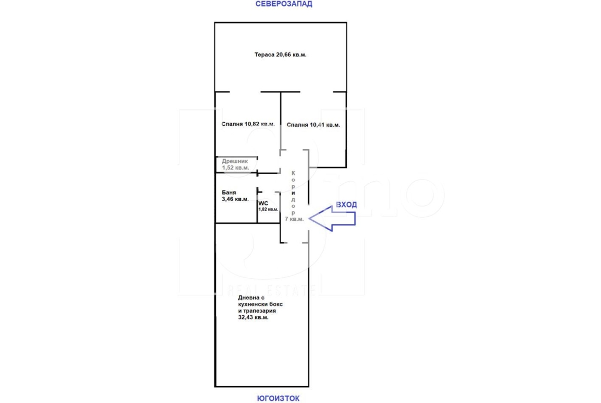
3mo Амалтея има удоволствието да Ви предложи тристаен апартамент с АКТ 14 в нова модерна жилищна сграда в ж.к. Люлин 2. Сградата е разположена до входа на бъдеща метростанция. Предложеният имот е с обща площ 98,68 кв.м. (застроена 80,76 кв.м.) и се състои от: входно антре (7 кв.м.), всекидневна с кухненски бокс и трапезария (32,43 кв.м.), спалня (10,82 кв.м.) с дрешник (1.52 кв.м), втора спалня (10,41 кв.м.), баня с тоалетна (3,46 кв.м.), отделна тоалетна (1,82 кв.м.) и просторна тераса (20,66 кв.м.). Жилището е разположено на партер с изложение югоизток и североизток. Граничните стени между апартаментите са 12 см. , 25 см и 26 (12см. + 2см. + 12 см. са звукоизолационни стени), външната топлоизолация е от каменна минерална вата минимум 12 см. Подходящ е за трудноподвижни хора. Отоплението е чрез ТЕЦ. Продаваме и други имоти в сградата с функционални разпределения и различни изложения. Апартаментите се продават в степен на завършеност по БДС с монтирана входна врата, поставена дограма, изградена домофонна инсталация и окабеляване. Отделно е възможна покупка на паркомясто или гараж. Планирано разрешение за ползване в края на 2026-та година. Инвеститорът е с дългогодишен опит в строителството. Предлага съвременна визия на своите сгради с луксозно изпълнение на общите части. В близост до сградата са разположени множество и най-различни търговски, хранителни и денонощни магазини и обекти. Също така детска градина, училища и спирки на градски транспорт и метро. Връзката с централната и други части на столицата се осъществява посредством бул. Царица Йоанна, бул. Петър Дертлиев и Околовръстен път.
За повече информация и организиране на огледи, моля свържете се с нас на посочените телефони!
Оферта № 880
3mo Амалтея, заедно с лицензирания в БНБ кредитен посредник КРЕДИТ НАВИГАТОР предоставят на своите клиенти възможност да изберат най-изгодният ипотечен кредит при закупуване на своето жилище. Услугата е БЕЗПЛАТНА.
Детайли
-
№ на имот AML-880
-
Цена €187,445/366,611 лв.
-
Квадратура 99 m²
-
Спални 2
-
Стаи 3
-
Година на строеж 2027
-
Тип имот 3-стаен
-
Етажи 5
-
Обзавеждане Необзаведен
-
Вид строителство Тухла
-
Цена кв.м. 1900
-
Отопление ТЕЦ
-
Ново строителство Да
-
Балкони (бр.) 1
-
Тоалетни (бр.) 1
-
Баня с тоалетна (бр.) 1
Лихвен калкулатор
Изчислете вашите месечни ипотечни плащания бързо и лесно с нашия лихвен калкулатор. Въведете общата сума на заема, първоначалното плащане, лихвения процент и срока на заема, за да получите точна прогноза за вашите месечни разходи.
-
Първоначално плащане
-
Размер на заема
-
Месечно плащане
Това е примерен калкулатор. За индивидуална оферта се свържете с нас!
- Аделина Ванчева
- avancheva@zaimota.com
- 0885923239
Подобни имоти
Многостаен апартамент за продажба в ж. к. Модерно предградие, гр. София
- €180,000/352,049 лв.
- ID: AML-1417
- Стаи: 4
- Легла: 3
- Вана: 0
Двустаен апартамент с потенциал в кв. Оборище, град София
- €207,999/406,811 лв.
- ID: AML-1307
- Стаи: 2
- Легло: 0
- Вана: 0
Продава двустаен апартамент с голяма тераса в затворен комплекс в ж.к. Люлин-5, София
- €141,568/276,883 лв.
- ID: AML-1410
- Стаи: 2
- Легло: 1
- Вана: 0
Просторен и слънчев двустаен апартамент за проздажба.
- €149,900/293,179 лв.
- ID: AML-1250
- Стаи: 2
- Легло: 1
- Вана: 0
Просторен пентхаус с четири спални, разположен в елегантен бутиков комплекс в град София
- €396,799/776,071 лв.
- ID: AML-941
- Стаи: 6
- Легла: 4
- Вана: 0
3mo недвижими имоти продава четиристаен луксозен апартамент в кв. Витоша, София
- €399,000/780,376 лв.
- ID: AKD-50
- Стаи: 4
- Легла: 3
- Вани: 3
Contact me

