3mo Амалтея продава тристаен апартамент с Акт 14 в ж.к. Люлин, град София
- €188,235/368,156 лв.
- AML-508
- ID на оферта
- 3-стаен
- Тип имот
- Тухла
- Вид строителство
- 1500
- Цена кв.м.
- 2025
- Година на строеж
Описание
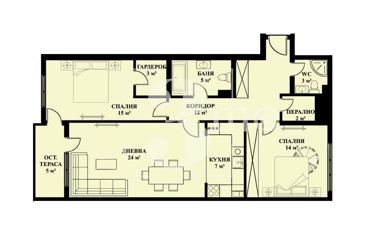
3mo Амалтея има удоволствието да ви предложи тристаен апартамент в нова луксозна жилищна сграда с Акт 14 в ж.к. Люлин 5. Предложеният имот е с обща площ от 125,49 кв.м. (застроена 105,71 кв.м.) и се състои от: коридор (12 кв.м.), всекидневна с кухненски бокс и трапезария (31 кв.м.) с излаз към остъклена тераса (5 кв.м.), просторна спалня (15 кв.м.) с дрешник (3 кв.м.), втора спалня (14 кв.м.), баня с тоалетна (5 кв.м.), перално/складово помещение (2 кв.м.) и отделна тоалетна (3 кв.м.). Апартаментът е разположен на втори от общо девет етажа. Има изложение юг и изток. Имотът се продава в степен на завършеност по БДС с монтирани радиатори, входна врата и шесткамерна PVC дограма. Отоплението е чрез ТЕЦ. Планирано Разрешение за ползване през 2026 година. Към имота може да се закупи паркомясто или гараж.
Инвеститорът на проекта има дългогодишен опит в строителството на жилищни сгради. Строи сгради с модерна визия и функционални разпределения на жилищните площи. В строителството използва материали от висок клас и съвременни технологии на изпълнение.
Локацията на сградата е отлична, в близост до детска градина, училище и водещи вериги хранителни магазини. Недалеч е разположен кооперативен пазар с много и най-различни магазини, ресторанти и кафенета. Районът има добри транспортни връзки и отлична инфраструктура.
Оферта № 508
3mo Амалтея, заедно с лицензирания в БНБ кредитен посредник КРЕДИТ НАВИГАТОР предоставят на своите клиенти възможност да изберат най-изгодния ипотечен кредит при закупуване на своето жилище. Услугата е БЕЗПЛАТНА.
Детайли
-
№ на имот AML-508
-
Цена €188,235/368,156 лв.
-
Квадратура 125 m²
-
Спални 2
-
Стаи 3
-
Година на строеж 2025
-
Тип имот 3-стаен
-
Етаж 2
-
Етажи 9
-
Обзавеждане Необзаведен
-
Вид строителство Тухла
-
Цена кв.м. 1500
-
Отопление ТЕЦ
-
Ново строителство Да
-
Балкони (бр.) 1
-
Тоалетни (бр.) 1
-
Баня с тоалетна (бр.) 1
Лихвен калкулатор
Изчислете вашите месечни ипотечни плащания бързо и лесно с нашия лихвен калкулатор. Въведете общата сума на заема, първоначалното плащане, лихвения процент и срока на заема, за да получите точна прогноза за вашите месечни разходи.
-
Първоначално плащане
-
Размер на заема
-
Месечно плащане
Това е примерен калкулатор. За индивидуална оферта се свържете с нас!
- Аделина Ванчева
- avancheva@zaimota.com
- 0885923239
Подобни имоти
Апартамент под наем в сърцето на Лозенец – зад хотел „Хемус“
- €510/997 лв.
- ID: AML-1185
- Стаи: 3
- Легло: 1
„3mo“ недвижими имоти продава двустаен апартамент, находящ се в ж.к. Дружба 2
- €174,288/340,878 лв.
- ID: DR-2460
- Стаи: 2
- Легло: 1
„3mo“ недвижими имоти продава тристаен апартамент, находящ се в ж.к. Дружба 2
- €266,000/520,251 лв.
- ID: DR-2459
- Стаи: 3
- Легла: 2
„3mo“ недвижими имоти продава двустаен апартамент, находящ се в ж.к. Дружба 2
- €156,696/306,471 лв.
- ID: DR-2458
- Стаи: 2
- Легло: 1
„3mo“ недвижими имоти продава новострояща се луксозна къща, находяща се в с. Бистрица
- €339,000/663,026 лв.
- ID: DR-2457
- Стаи: 6
- Легла: 4
“3mo” недвижими имоти отдава под наем обзаведен двустаен апартамент в кв. Дружба 1
- €490/958 лв.
- ID: DR-2454
- Стаи: 2
- Легло: 1
Contact me













