3mo Амалтея предлага тристаен непреходен апартамент с Акт 14 в ж.к. Люлин, град София
- €217,663/425,712 лв.
- AML-548
- ID на оферта
- 3-стаен
- Тип имот
- Тухла
- Вид строителство
- 1808
- Цена кв.м.
- 2025
- Година на строеж
Описание
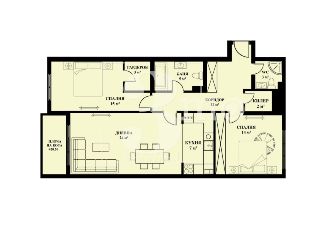
3mo Амалтея има удоволствието да ви предложи тристаен апартамент в нова луксозна жилищна сграда с Акт 14 в ж.к. Люлин 5. Предложеният имот е с обща площ от 125,49 кв.м. (застроена 105,71 кв.м.) и се състои от: коридор (12 кв.м.), всекидневна с кухненски бокс и трапезария (31 кв.м.) с излаз към открита тераса (20,50 кв.м.), просторна спалня (15 кв.м.) с дрешник (3 кв.м.), втора спалня (14 кв.м.), баня с тоалетна (5 кв.м.), перално/складово помещение (2 кв.м.) и отделна тоалетна (3 кв.м.). Апартаментът е разположен на девети от общо девет етажа. Има изложение юг, изток и север. Имотът се продава в степен на завършеност по БДС с монтирани радиатори, входна врата и шесткамерна PVC дограма. Отоплението е чрез ТЕЦ. Планирано разрешение за ползване през 2026 година.
Към имота може да се закупи паркомясто или гараж.
Инвеститорът на проекта има дългогодишен опит в строителството на жилищни сгради. Строи имоти с модерна визия и функционални разпределения на жилищните площи. В строителството използва материали от висок клас и съвременни технологии на изпълнение.
Локацията на сградата е отлична. Намира се в близост до детска градина, училище, водещи вериги хранителни магазини. Недалеч е разположен кооперативен пазар с много и най-различни магазини, ресторанти и кафенета. Районът има добри транспортни връзки и отлична инфраструктура.
Оферта № 548
3mo Амалтея, заедно с лицензирания в БНБ кредитен посредник КРЕДИТ НАВИГАТОР предоставят на своите клиенти възможност да изберат най-изгодния ипотечен кредит при закупуване на своето жилище. Услугата е БЕЗПЛАТНА.
Детайли
-
№ на имот AML-548
-
Цена €217,663/425,712 лв.
-
Квадратура 120 m²
-
Спални 2
-
Стаи 3
-
Година на строеж 2025
-
Тип имот 3-стаен
-
Етаж 9
-
Етажи 9
-
Обзавеждане Необзаведен
-
Вид строителство Тухла
-
Цена кв.м. 1808
-
Отопление ТЕЦ
-
Ново строителство Да
-
Балкони (бр.) 1
-
Тоалетни (бр.) 1
-
Баня с тоалетна (бр.) 1
Лихвен калкулатор
Изчислете вашите месечни ипотечни плащания бързо и лесно с нашия лихвен калкулатор. Въведете общата сума на заема, първоначалното плащане, лихвения процент и срока на заема, за да получите точна прогноза за вашите месечни разходи.
-
Първоначално плащане
-
Размер на заема
-
Месечно плащане
Това е примерен калкулатор. За индивидуална оферта се свържете с нас!
- Аделина Ванчева
- avancheva@zaimota.com
- 0885923239
Подобни имоти
Многостаен апартамент за продажба в ж. к. Модерно предградие, гр. София
- €180,000/352,049 лв.
- ID: AML-1417
- Стаи: 4
- Легла: 3
- Вана: 0
Двустаен апартамент с потенциал в кв. Оборище, град София
- €207,999/406,811 лв.
- ID: AML-1307
- Стаи: 2
- Легло: 0
- Вана: 0
Продава двустаен апартамент с голяма тераса в затворен комплекс в ж.к. Люлин-5, София
- €141,568/276,883 лв.
- ID: AML-1410
- Стаи: 2
- Легло: 1
- Вана: 0
Просторен и слънчев двустаен апартамент за проздажба.
- €149,900/293,179 лв.
- ID: AML-1250
- Стаи: 2
- Легло: 1
- Вана: 0
Просторен пентхаус с четири спални, разположен в елегантен бутиков комплекс в град София
- €396,799/776,071 лв.
- ID: AML-941
- Стаи: 6
- Легла: 4
- Вана: 0
3mo недвижими имоти продава четиристаен луксозен апартамент в кв. Витоша, София
- €399,000/780,376 лв.
- ID: AKD-50
- Стаи: 4
- Легла: 3
- Вани: 3
Contact me














