3mo Амалтея предлага чудесен тристаен апартамент с функционално разпределение в нова сграда в ж.к. Люлин, град София
- €193,100/377,671 лв.
- AML-608
- ID на оферта
- 3-стаен
- Тип имот
- Тухла
- Вид строителство
- 1718
- Цена кв.м.
- 2025
- Година на строеж
Описание
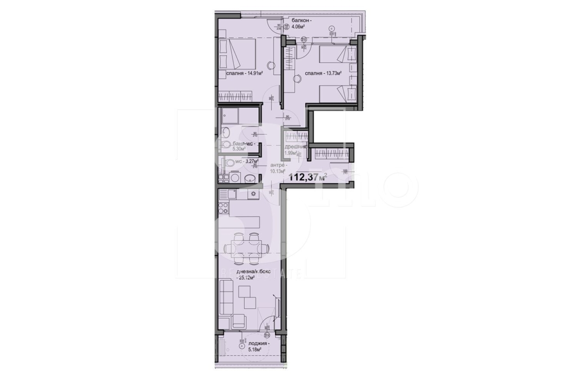
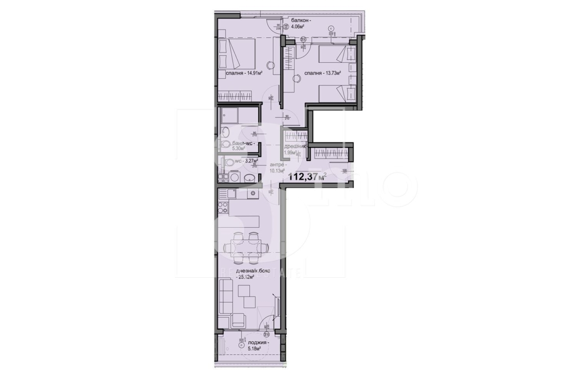
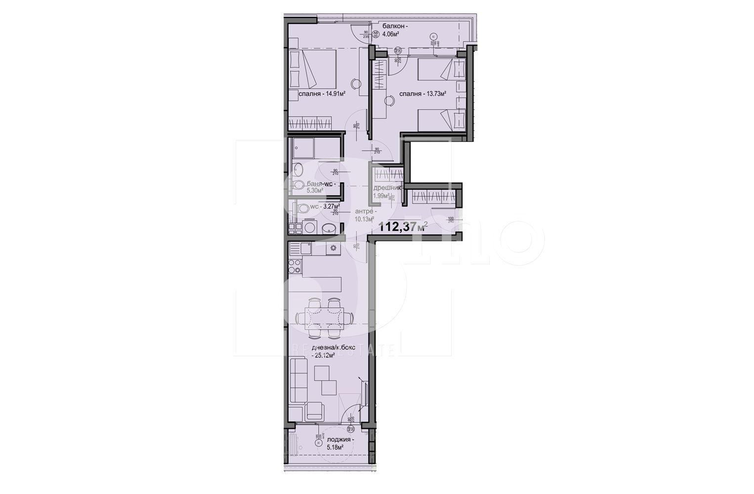
3mo Амалтея има удоволствието да Ви предложи тристаен апартамент в нова модерна жилищна сграда. Планирано разрешение за ползване в края на 2026-та година. Намира се в ж.к. Люлин 5 на комуникативно място. Предложеният имот е с обща площ от 112,37 кв.м. (застроена 100 кв.м.) и се състои от: входно антре (10,13 кв.м.), всекидневна с кухненски бокс и трапезария (25,12 кв.м.) с лоджия (5,18 кв.м.), спалня (14,91 кв.м.), втора спалня (13,73 кв.м.), балкон (4,33 кв.м.), дрешник/складово помещение (1,99 кв.м.), баня с тоалетна (5,30 кв.м.) и отделна тоалетна (3,27 кв.м). Жилището е разположено на осми от общо девет етажа. Има изложение изток и запад. Отоплението е чрез Газ. Към имота може да се закупи паркомясто или гараж. В същата сграда и в района продаваме най-разнообразни апартаменти.
Инвеститорът е с богат опит, специализиран в изграждането на качествени жилищни сгради, като прилага най-новите технологии и иновации в строителството. В близост до имота са разположени множество търговски, хранителни и денонощни магазини и обекти. Също така детска градина, училище и удобен градски транспорт с бърз превоз до метростанции Люлин, Западен парк и Сливница. Връзката с централната и други части на столицата се осъществява посредством бул. Петър Дертлиев, бул. Добринова скала и Околовръстен път.
За повече информация и организиране на огледи, моля свържете се с нас на посочените телефони!
Оферта № 608
3mo Амалтея, заедно с лицензирания в БНБ кредитен посредник КРЕДИТ НАВИГАТОР предоставят на своите клиенти възможност да изберат най-изгодният ипотечен кредит при закупуване на своето жилище. Услугата е БЕЗПЛАТНА.
Детайли
-
№ на имот AML-608
-
Цена €193,100/377,671 лв.
-
Квадратура 112 m²
-
Спални 2
-
Стаи 3
-
Година на строеж 2025
-
Тип имот 3-стаен
-
Етаж 8
-
Етажи 9
-
Обзавеждане Необзаведен
-
Вид строителство Тухла
-
Цена кв.м. 1718
-
Отопление Газ
-
Ново строителство Да
-
Балкони (бр.) 2
-
Тоалетни (бр.) 1
-
Баня с тоалетна (бр.) 1
Лихвен калкулатор
Изчислете вашите месечни ипотечни плащания бързо и лесно с нашия лихвен калкулатор. Въведете общата сума на заема, първоначалното плащане, лихвения процент и срока на заема, за да получите точна прогноза за вашите месечни разходи.
Месечно
-
Първоначално плащане
-
Размер на заема
-
Месечно плащане
Това е примерен калкулатор. За индивидуална оферта се свържете с нас!
- Аделина Ванчева
- avancheva@zaimota.com
- 0885923239
Подобни имоти
Многостаен апартамент за продажба в ж. к. Модерно предградие, гр. София
- €180,000/352,049 лв.
- ID: AML-1417
- Стаи: 4
- Легла: 3
- Вана: 0
преди 21 часа
преди 21 часа
Двустаен апартамент с потенциал в кв. Оборище, град София
- €207,999/406,811 лв.
- ID: AML-1307
- Стаи: 2
- Легло: 0
- Вана: 0
преди един ден
преди един ден
Продава двустаен апартамент с голяма тераса в затворен комплекс в ж.к. Люлин-5, София
- €141,568/276,883 лв.
- ID: AML-1410
- Стаи: 2
- Легло: 1
- Вана: 0
преди 2 дни
преди 2 дни
Просторен и слънчев двустаен апартамент за проздажба.
- €149,900/293,179 лв.
- ID: AML-1250
- Стаи: 2
- Легло: 1
- Вана: 0
преди 2 дни
преди 2 дни
Просторен пентхаус с четири спални, разположен в елегантен бутиков комплекс в град София
- €396,799/776,071 лв.
- ID: AML-941
- Стаи: 6
- Легла: 4
- Вана: 0
преди 2 дни
преди 2 дни
3mo недвижими имоти продава четиристаен луксозен апартамент в кв. Витоша, София
- €399,000/780,376 лв.
- ID: AKD-50
- Стаи: 4
- Легла: 3
- Вани: 3
преди 3 дни
преди 3 дни
Contact me
