3mo Амалтея предлага тристаен апартамент за продажба в нова сграда в ж.к. Люлин-център, гр. София
- €265,320/518,921 лв.
- AML-360
- ID на оферта
- 3-стаен
- Тип имот
- Тухла
- Вид строителство
- 2000
- Цена кв.м.
- 2025
- Година на строеж
Описание
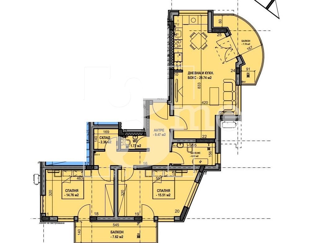
3mo агенция Амалтея продава тристаен апартамент в нова жилищна сграда в ж.к. Люлин-Център, гр. София, на 5 минути от Метростанция 'Люлин'. Сградата е на етап - Акт 14, със срок на завършване м. април 2026 г. Предложеният имот е със застроена площ 113,99 кв.м., обща площ 132,66 кв.м., разположен на втори от общо шест етажа. Състои се от: дневна с кухня (29,74 кв.м.), две спални (15,51 кв.м. и 14,76 кв.м.), два балкона (7,19 кв.м. и 7,62 кв.м.), баня с тоалетна (4,60 кв.м.), тоалетна (1,72 кв.м.), склад (2,36 кв.м.) и антре (9,47). Изложението е югозапад-югоизток-изток-североизток-северозапад. Отоплението е на ток.
Жилището ще бъде издадено в степен на завършеност по БДС, с поставена дограма с двоен стъклопакет и външна метална врата с касов ключ. Под - циментова замазка, стени и тавани - гипсова мазилка машинно положена. Санитарни помещения: под на циментова замазка, стени и тавани на вароциментова мазилка. Тераси: напълно завършени с гранитогрес.
Строителна система: монолитна, червена тухла, външно топлоизолирана 10 см.
Общи части: партерът ще е с положена силикатна мозаечна мазилка, вход и стълбищна клетка - завършени с гранитогрес.
В сградата има свободни и други двустайни и тристайни апартаменти. На партера има гаражи и паркоместа.
Срок за завършване - планира се да има Разрешение за ползване до м. април, 2026 г.
Цената е актуална и е с ДДС.
Оферта № 360
3mo Амалтея, заедно с лицензирания в БНБ кредитен посредник КРЕДИТ НАВИГАТОР предоставят на своите клиенти възможност да изберат най-изгодният ипотечен кредит при закупуване на своето жилище. Услугата е БЕЗПЛАТНА.
Детайли
-
№ на имот AML-360
-
Цена €265,320/518,921 лв.
-
Квадратура 133 m²
-
Спални 2
-
Стаи 3
-
Година на строеж 2025
-
Тип имот 3-стаен
-
Етаж 2
-
Етажи 6
-
Обзавеждане Необзаведен
-
Вид строителство Тухла
-
Цена кв.м. 2000
-
Отопление Електричество
-
Ново строителство Да
-
Балкони (бр.) 2
-
Тоалетни (бр.) 1
-
Баня с тоалетна (бр.) 1
Лихвен калкулатор
Изчислете вашите месечни ипотечни плащания бързо и лесно с нашия лихвен калкулатор. Въведете общата сума на заема, първоначалното плащане, лихвения процент и срока на заема, за да получите точна прогноза за вашите месечни разходи.
-
Първоначално плащане
-
Размер на заема
-
Месечно плащане
Това е примерен калкулатор. За индивидуална оферта се свържете с нас!
- Христо Генадиев
- hgenadiev@zaimota.com
- 0876841078
Подобни имоти
Многостаен апартамент за продажба в ж. к. Модерно предградие, гр. София
- €180,000/352,049 лв.
- ID: AML-1417
- Стаи: 4
- Легла: 3
- Вана: 0
Двустаен апартамент с потенциал в кв. Оборище, град София
- €207,999/406,811 лв.
- ID: AML-1307
- Стаи: 2
- Легло: 0
- Вана: 0
Продава двустаен апартамент с голяма тераса в затворен комплекс в ж.к. Люлин-5, София
- €141,568/276,883 лв.
- ID: AML-1410
- Стаи: 2
- Легло: 1
- Вана: 0
Просторен и слънчев двустаен апартамент за проздажба.
- €149,900/293,179 лв.
- ID: AML-1250
- Стаи: 2
- Легло: 1
- Вана: 0
Просторен пентхаус с четири спални, разположен в елегантен бутиков комплекс в град София
- €396,799/776,071 лв.
- ID: AML-941
- Стаи: 6
- Легла: 4
- Вана: 0
3mo недвижими имоти продава четиристаен луксозен апартамент в кв. Витоша, София
- €399,000/780,376 лв.
- ID: AKD-50
- Стаи: 4
- Легла: 3
- Вани: 3
Contact me


















