Тристаен южен апартамент в затворен луксозен бутиков комплекс в столицата
- €161,500/315,867 лв.
- AML-973
- ID на оферта
- 3-стаен
- Тип имот
- Тухла
- Вид строителство
- 1330
- Цена кв.м.
- 2027
- Година на строеж
Описание
3mo Амалтея има удоволствието да Ви представи чудесен тристаен апартамент, разположен в елегантен бутиков комплекс с едва 15 апартамента в кв. Модерно предградие – рядка находка за ценителите на уединението, простора и високия стандарт на живот. Планирано разрешение за ползване 2027-ма година.
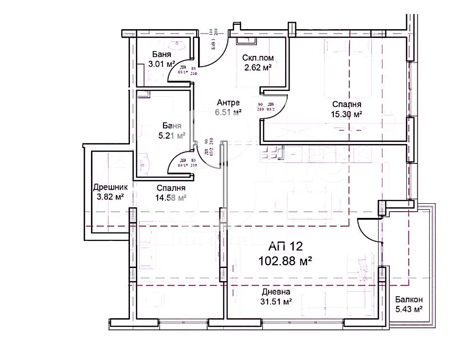
Жилището е с обща площ от 121,44 кв.м. (застроена площ 102,89 кв.м.) и се състои от: входно антре (6,51 кв.м.), слънчева дневна (31,51 кв.м.), просторна спалня (15,30 кв.м.), втора спалня (14,58 кв.м.) със своя баня (5,21 кв.м.) и дрешник (3,82 кв.м.), втoра баня (3 кв.м.), балкон (5,43 кв.м.) и складово помещение (2,62 кв.м.).
Имотът е разположен на трети от общо четири етажа и е с предпочитано изложение: юг и изток, което гарантира изобилие от естествена светлина през целия ден, топлина през зимните месеци и прохлада при залез. Продава се в етап на завършеност по Ваш избор - по БДС, до ключ и готов за живеене. Възможно е закупуване на подземно паркомясто или гараж. Продават се и други жилища в същата сграда. Комплексът се намира в непосредствена близост до Западния парк – отлично поддържан и богато озеленен градски парк, който разполага с широки алеи, обособени зони за отдих, пикник, детски площадки, площадки за четириноги приятелчета и присъствие на конна полиция с 24-часово видеонаблюдение, осигуряващи спокойствие и безопасност. Комплексът съчетава всички нужни удобства за съвременен градски живот: отлична инфраструктура, бърз транспортен достъп, зелени площи и усещане за общност. Поддръжката на комплекса включва: охрана 24/7, видеонаблюдение, озеленяване и почистване. Инвеститорът зад проекта е с дългогодишен опит и безупречна репутация в строителството на качествени жилищни сгради в страната, като използва материали от висок клас и съвременни технологии за изпълнение.
Оферта № 973
Агенция 3mo Амалтея, заедно с лицензирания в БНБ кредитен посредник Кредит Навигатор, Ви предлага напълно безплатно съдействие за избор на най-изгодния кредит, специално съобразен с Вашите нужди.
Детайли
-
№ на имот AML-973
-
Цена €161,500/315,867 лв.
-
Квадратура 121 m²
-
Спални 2
-
Стаи 3
-
Година на строеж 2027
-
Тип имот 3-стаен
-
Етаж 3
-
Етажи 4
-
Обзавеждане Необзаведен
-
Вид строителство Тухла
-
Цена кв.м. 1330
-
Отопление Електричество
-
Ново строителство Да
-
Балкони (бр.) 1
-
Баня с тоалетна (бр.) 2
Лихвен калкулатор
Изчислете вашите месечни ипотечни плащания бързо и лесно с нашия лихвен калкулатор. Въведете общата сума на заема, първоначалното плащане, лихвения процент и срока на заема, за да получите точна прогноза за вашите месечни разходи.
-
Първоначално плащане
-
Размер на заема
-
Месечно плащане
Това е примерен калкулатор. За индивидуална оферта се свържете с нас!
- Аделина Ванчева
- avancheva@zaimota.com
- 0885923239
Подобни имоти
Гарсониера преустроена на двустаен апартамент в ж. к. Надежда 2, гр. София
- €142,300/278,315 лв.
- ID: AML-1257
- Стаи: 2
- Легло: 1
Просторен и слънчев двустаен апартамент за проздажба.
- €144,900/283,400 лв.
- ID: AML-1250
- Стаи: 2
- Легло: 1
Двустаен преустроен на тристаен апартамент за продажба в ж.к. Люлин 7, гр. София
- €150,000/293,375 лв.
- ID: AML-1245
- Стаи: 3
- Легло: 1
Тристаен апартамент за продажба в ж.к. Люлин 5, гр. София
- €134,999/264,035 лв.
- ID: AML-1241
- Стаи: 3
- Легла: 2
Офиси под наем в офис сграда в ж.к. Люлин 2, гр. София
- €1,572/3,075 лв.
- ID: AML-1215
- Стаи: 3
Двустаен преустроен и ремонтиран апартамент за продажба в ж.к. Люлин 2, гр. София
- €159,000/310,977 лв.
- ID: AML-1200
- Стаи: 3
- Легла: 2
Contact me

