- 302
- ID на оферта
- 2-стаен
- Тип имот
- Тухла
- Вид строителство
- 1839
- Цена кв.м.
- 2025
- Година на строеж
Описание
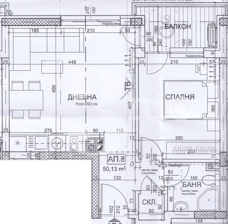
3mo Амалтея продава ексклузивно двустаен апартамент в кокетна бутикова сграда Green Family Living в кв. Суходол. Апартаментът е разположен на трети етаж и има следното разпределение: антре, дневна с кухненски бокс, спалня, склад, баня с тоалетна и балкон. Изцяло южно изложение с прекрасна гледка към Витоша. Всички апартаменти в сградата са прецизно проектирани и ергономични, с максимално жилищно пространство и малки общи части.
Сградата предлага модерно строителство, фасадата е изпълнена със силикатна мазилка, висококачествена дограма 4 сезона, марка Гелан, луксозно изпълнени общи части, висок клас асансьор марка Орона.
Застроената площ на апартамента е 50 кв.м. Квадратурата с общи части е 56 кв.м.
Разрешение за ползване април 2025 г.
Схема на плащане: 20% при подписване на предварителен договор, 80% след Разрешение за ползване.
Отлична локация в кв. Суходол, в непосредствена близост до детска градина, магазин, аптека, 500 м. разстояние до автобусна спирка и Околовръстен път.
В същата сграда продаваме и тристаен апартамент.
Възможност за закупуване на гараж с цена 25 000 евро и паркомясто с цена 13 000 евро.
Намерете най-добрата оферта за ипотечен кредит с Агенция ТРИМО и лицензиран кредитен посредник КРЕДИТ НАВИГАТОР. Услугата е безплатна.
Оферта № 302
Детайли
-
№ на имот 302
-
Цена €103,000/201,450 лв.
-
Квадратура 56 m²
-
Година на строеж 2025
-
Тип имот 2-стаен
-
Етаж 3
-
Етажи 4
-
Обзавеждане Необзаведен
-
Вид строителство Тухла
-
Цена кв.м. 1839
-
Отопление Без отопление
Подобни имоти
Гарсониера преустроена на двустаен апартамент в ж. к. Надежда 2, гр. София
- €142,300/278,315 лв.
- ID: AML-1257
- Стаи: 2
- Легло: 1
Просторен и слънчев двустаен апартамент за проздажба.
- €144,900/283,400 лв.
- ID: AML-1250
- Стаи: 2
- Легло: 1
Двустаен преустроен на тристаен апартамент за продажба в ж.к. Люлин 7, гр. София
- €150,000/293,375 лв.
- ID: AML-1245
- Стаи: 3
- Легло: 1
Тристаен апартамент за продажба в ж.к. Люлин 5, гр. София
- €134,999/264,035 лв.
- ID: AML-1241
- Стаи: 3
- Легла: 2
Офиси под наем в офис сграда в ж.к. Люлин 2, гр. София
- €1,572/3,075 лв.
- ID: AML-1215
- Стаи: 3
Двустаен преустроен и ремонтиран апартамент за продажба в ж.к. Люлин 2, гр. София
- €159,000/310,977 лв.
- ID: AML-1200
- Стаи: 3
- Легла: 2
Contact me













