- AML-1392
- ID на оферта
- 4-стаен
- Тип имот
- Тухла
- Вид строителство
- 2327
- Цена кв.м.
- 2028
- Година на строеж
Описание
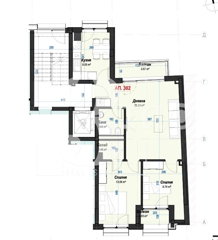
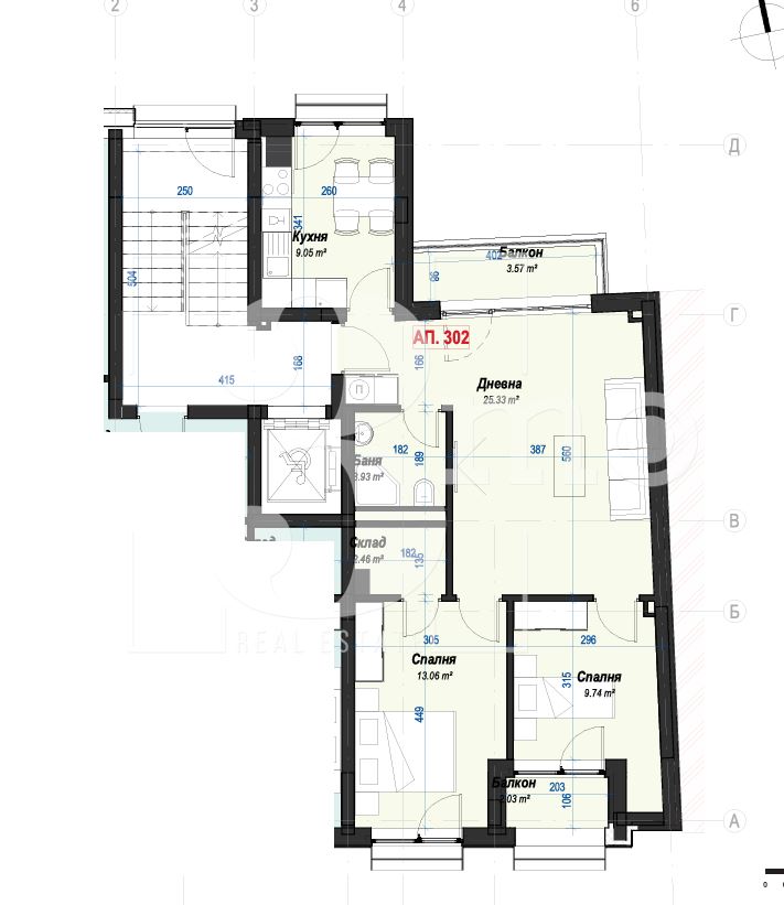
3mo Амалтея предлага на третия етаж в бутикова сграда с 14 апартамента практичен, четиристаен апартамент с 84 кв.м. застроена площ (106,58 кв.м. с общи части). Жилището е компактно, но функционално – дневната е 25,33 кв.м. с южно изложение и тераса, а спалните са 13,06 кв.м. и 9,74 кв.м. Има самостоятелна кухня от 9,06 кв.м., баня с тоалетна, склад и втора тераса. Изложението юг и север осигурява добра осветеност през деня.
Сградата е проектирана с качествени материали: тухлена зидария, окачена фасада с топлоизолация и структурна мазилка, PVC дограма с троен стъклопакет и блиндирани входни врати. Общите части са с гранитогрес и метални парапети, предвиден е асансьор, а към всяко жилище може да се закупи паркомясто или гараж.
Локацията съчетава спокойствие и удобство – на пешеходно разстояние са метростанция „Константин Величков“, спирки на автобуси и трамваи, училища, магазини и Мол София, а бързият достъп до центъра и основните булеварди улеснява ежедневието.
Строителството започва май/юни 2026 г., Акт 14 е януари 2027 г., Акт 15 – октомври 2027 г., Акт 16 – април 2028 г.
Този апартамент предлага компактен и функционален дом в бутиков проект с отлична локация – подходящ както за семейство, така и за инвестиция.
Детайли
-
№ на имот AML-1392
-
Цена €249,000/487,002 лв.
-
Квадратура 107 m²
-
Спални 2
-
Стаи 4
-
Година на строеж 2028
-
Тип имот 4-стаен
-
Етаж 3
-
Етажи 7
-
Вид строителство Тухла
-
Цена кв.м. 2327
-
Балкони (бр.) 2
-
Баня с тоалетна (бр.) 1
Екстри
Лихвен калкулатор
Изчислете вашите месечни ипотечни плащания бързо и лесно с нашия лихвен калкулатор. Въведете общата сума на заема, първоначалното плащане, лихвения процент и срока на заема, за да получите точна прогноза за вашите месечни разходи.
-
Първоначално плащане
-
Размер на заема
-
Месечно плащане
Това е примерен калкулатор. За индивидуална оферта се свържете с нас!
- Ели Георгиева
- egeorgieva@zaimota.com
- 0879563102
Подобни имоти
Многостаен апартамент за продажба в ж. к. Модерно предградие, гр. София
- €180,000/352,049 лв.
- ID: AML-1417
- Стаи: 4
- Легла: 3
- Вана: 0
Двустаен апартамент с потенциал в кв. Оборище, град София
- €207,999/406,811 лв.
- ID: AML-1307
- Стаи: 2
- Легло: 0
- Вана: 0
Продава двустаен апартамент с голяма тераса в затворен комплекс в ж.к. Люлин-5, София
- €141,568/276,883 лв.
- ID: AML-1410
- Стаи: 2
- Легло: 1
- Вана: 0
Просторен и слънчев двустаен апартамент за проздажба.
- €149,900/293,179 лв.
- ID: AML-1250
- Стаи: 2
- Легло: 1
- Вана: 0
Просторен пентхаус с четири спални, разположен в елегантен бутиков комплекс в град София
- €396,799/776,071 лв.
- ID: AML-941
- Стаи: 6
- Легла: 4
- Вана: 0
3mo недвижими имоти продава четиристаен луксозен апартамент в кв. Витоша, София
- €399,000/780,376 лв.
- ID: AKD-50
- Стаи: 4
- Легла: 3
- Вани: 3
Contact me


