3mo Амалтея продава четиристаен тухлен апартамент в ж.к. Малинова долин
- €323,880/633,454 лв.
- AML-1361
- ID на оферта
- 4-стаен
- Тип имот
- Тухла
- Вид строителство
- 2399
- Цена кв.м.
Описание
3mo Амалтея предлага за продажба четиристаен тухлен апартамент на втори етаж, в новостроящ се комплекс от три луксозни жилищни сгради в ж.к. Малинова долина, в близост до бул. Околовръстен път.
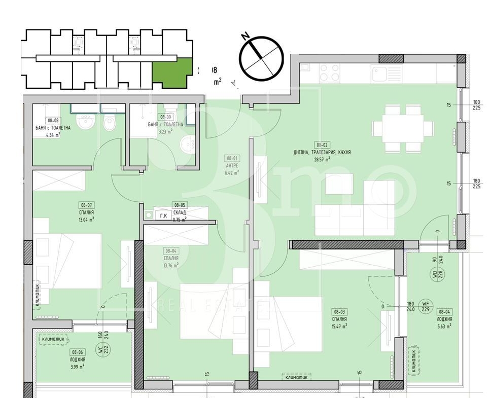
РЗП на апартамента - 135кв.м. и ЗП 114 кв.м. Разпределението на апартамента е както следва: просторен хол с кухненски бокс и трапезария , три непреходни спални , два балкона, две бани с тоалетна, склад.
Апартаментът се издава на шпакловка и замазка с блиндирана входна врата марка СОЛИД 55. Сградите имат луксозни общи части и асансьор от висок клас с марка ORONA. Имат видео наблюдение и контрол на достъп.
Комплексът разполага с общо 132апартамента, всеки от които е със светли и функционални помещения. Има възможност за покупка на гараж или паркомясто. Към сградите ще има богато озеленена градина с обособени зони за отдих, детска площадка и заграждение за кучета.
Кварталът се намира в южната част на София, в подножието на планината. Сградите са с отлично местоположение. В непосредствена близост са разположени молове, хипермаркети, детска градина. Налична е бърза транспортна връзка с главни столични булеварди.
Планиран Акт 16 месец лятото2027 г.
Цената на имота е съобразена със схемата на плащане.
За повече информация се обадете на тел: 0889984448
Получете най-добрата оферта за ипотечен кредит с Агенция ТРИМО и лицензиран кредитен посредник КРЕДИТ НАВИГАТОР. Услугата е безплатна.
Оферта № 1361
Детайли
-
№ на имот AML-1361
-
Цена €323,880/633,454 лв.
-
Квадратура 135 m²
-
Спални 3
-
Стаи 4
-
Тип имот 4-стаен
-
Етаж 2
-
Етажи 4
-
Вид строителство Тухла
-
Цена кв.м. 2399
-
Ново строителство Да
-
Балкони (бр.) 2
-
Баня с тоалетна (бр.) 2
Екстри
Лихвен калкулатор
Изчислете вашите месечни ипотечни плащания бързо и лесно с нашия лихвен калкулатор. Въведете общата сума на заема, първоначалното плащане, лихвения процент и срока на заема, за да получите точна прогноза за вашите месечни разходи.
-
Първоначално плащане
-
Размер на заема
-
Месечно плащане
Това е примерен калкулатор. За индивидуална оферта се свържете с нас!
- Славка Лазарова
- slazarova@zaimota.com
- 0876841074
Подобни имоти
Тристаен апартамент за продажба в ж.к. Надежда 1, гр. София
- €197,470/386,218 лв.
- ID: AML-845
- Стаи: 3
- Легла: 2
- Вана: 1
Тристаен апартамент в нова сграда за продажба в ж.к. Люлин-център, гр. София
- €274,960/537,775 лв.
- ID: AML-365
- Стаи: 3
- Легла: 2
Тристаен апартамент в нова сграда за продажба в ж.к. Люлин-център, гр. София
- €271,220/530,460 лв.
- ID: AML-363
- Стаи: 3
- Легла: 2
3mo Амалтея предлага тристаен апартамент за продажба в нова сграда в ж.к. Люлин-център, гр. София
- €265,320/518,921 лв.
- ID: AML-360
- Стаи: 3
- Легла: 2
„3mo“ недвижими имоти предлага под наем функционален търговски обект с отлична локация в ж.к. Младост 1
- €600/1,173 лв.
- ID: DR-2946
Двустаен непреходен апартамент за продажба в ж. к. Люлин 10, гр. София
- €140,000/273,816 лв.
- ID: AML-1346
- Стаи: 2
- Легло: 1
Contact me
