3mo Амалтея предлага за продажба четиристаен тухлен апартамент в новостроящ се комплекс в ж.к. Малинова долина
- €293,680/574,388 лв.
- AML-855
- ID на оферта
- 4-стаен
- Тип имот
- Тухла
- Вид строителство
- 1998
- Цена кв.м.
- 2027
- Година на строеж
Описание
3mo Амалтея предлага за продажба четиристаен тухлен апартамент на четвърти етаж, в новостроящ се комплекс от две луксозни жилищни сгради в ж.к. Малинова долина, в близост до бул. Околовръстен път.
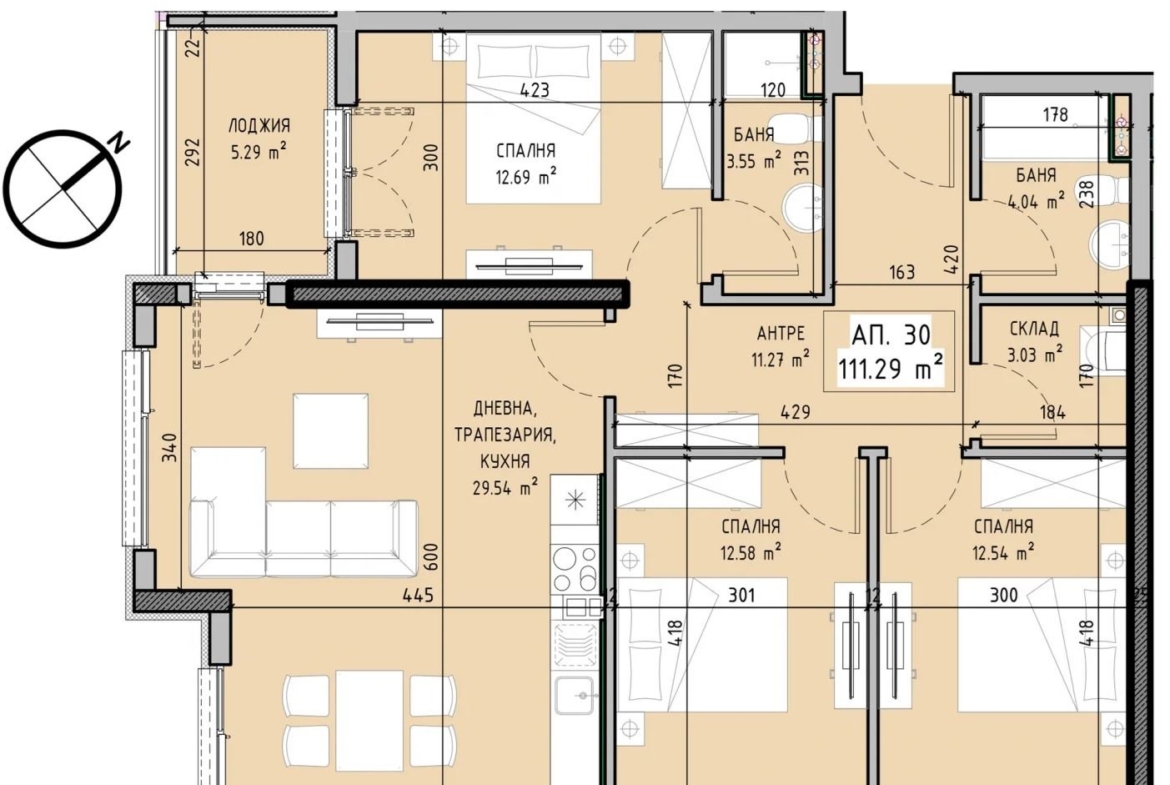
РЗП на апартамента - 147кв.м. и ЗП 127 кв.м. Разпределението на апартамента е както следва: просторен хол с кухненски бокс и трапезария , три непреходни спални , два балкона, две бани с тоалетна, склад.
Апартаментът се издава на шпакловка и замазка с блиндирана входна врата марка СОЛИД 55. Сградите имат луксозни общи части и асансьор от висок клас с марка ORONA. Имат видео наблюдение и контрол на достъп.
Комплексът разполага с общо 138 апартамента, всеки от които е със светли и функционални помещения. Има възможност за покупка на гараж или паркомясто. Към сградите ще има богато озеленена градина с обособени зони за отдих, детска площадка и заграждение за кучета.
Кварталът се намира в южната част на София, в подножието на планината. Сградите са с отлично местоположение. В непосредствена близост са разположени молове, хипермаркети, детска градина. Налична е бърза транспортна връзка с главни столични булеварди.
Планиран Акт 16 месец юли 2027 г.
Цената на имота е съобразена със схемата на плащане.
За повече информация се обадете на тел: 0889984448
Получете най-добрата оферта за ипотечен кредит с Агенция ТРИМО и лицензиран кредитен посредник КРЕДИТ НАВИГАТОР. Услугата е безплатна.
Оферта № 855
Детайли
-
№ на имот AML-855
-
Цена €293,680/574,388 лв.
-
Квадратура 147 m²
-
Спални 3
-
Стаи 4
-
Година на строеж 2027
-
Тип имот 4-стаен
-
Етаж 4
-
Етажи 5
-
Обзавеждане Необзаведен
-
Вид строителство Тухла
-
Цена кв.м. 1998
-
Отопление Газ
-
Ново строителство Да
-
Балкони (бр.) 2
-
Баня с тоалетна (бр.) 2
Лихвен калкулатор
Изчислете вашите месечни ипотечни плащания бързо и лесно с нашия лихвен калкулатор. Въведете общата сума на заема, първоначалното плащане, лихвения процент и срока на заема, за да получите точна прогноза за вашите месечни разходи.
-
Първоначално плащане
-
Размер на заема
-
Месечно плащане
Това е примерен калкулатор. За индивидуална оферта се свържете с нас!
- Славка Лазарова
- slazarova@zaimota.com
- 0876841074
Подобни имоти
Магазин за отдаване под наем на партер в ж.к. Люлин център, гр. София
- €700/1,369 лв.
- ID: AML-1474
- Стаи: 3
- Легло: 0
- Вана: 0
Двустаен апартамент с потенциал в кв. Оборище, град София
- €207,999/406,811 лв.
- ID: AML-1307
- Стаи: 2
- Легло: 0
- Вана: 0
Тристаен непреходен апартамент за продажба . ж.к. Надежда 1, гр.София
- €189,000/369,652 лв.
- ID: AML-1438
- Стаи: 3
- Легла: 2
- Вана: 1
Обзаведен тристаен апартамент под наем в. ж. к. Люлин 8, гр. София
- €550/1,076 лв.
- ID: AML-1434
- Стая: 0
- Легло: 0
- Вана: 0
Многостаен апартамент за продажба в ж. к. Модерно предградие, гр. София
- €180,000/352,049 лв.
- ID: AML-1417
- Стаи: 4
- Легла: 3
- Вана: 0
Двустаен апартамент за продажба в ж.к.Люлин 2, гр.София
- €146,800/287,116 лв.
- ID: AML-1385
- Стаи: 3
- Легло: 1
- Вана: 0
Contact me
