- AML-835
- ID на оферта
- 4-стаен
- Тип имот
- Тухла
- Вид строителство
- 1177
- Цена кв.м.
- 2026
- Година на строеж
Описание
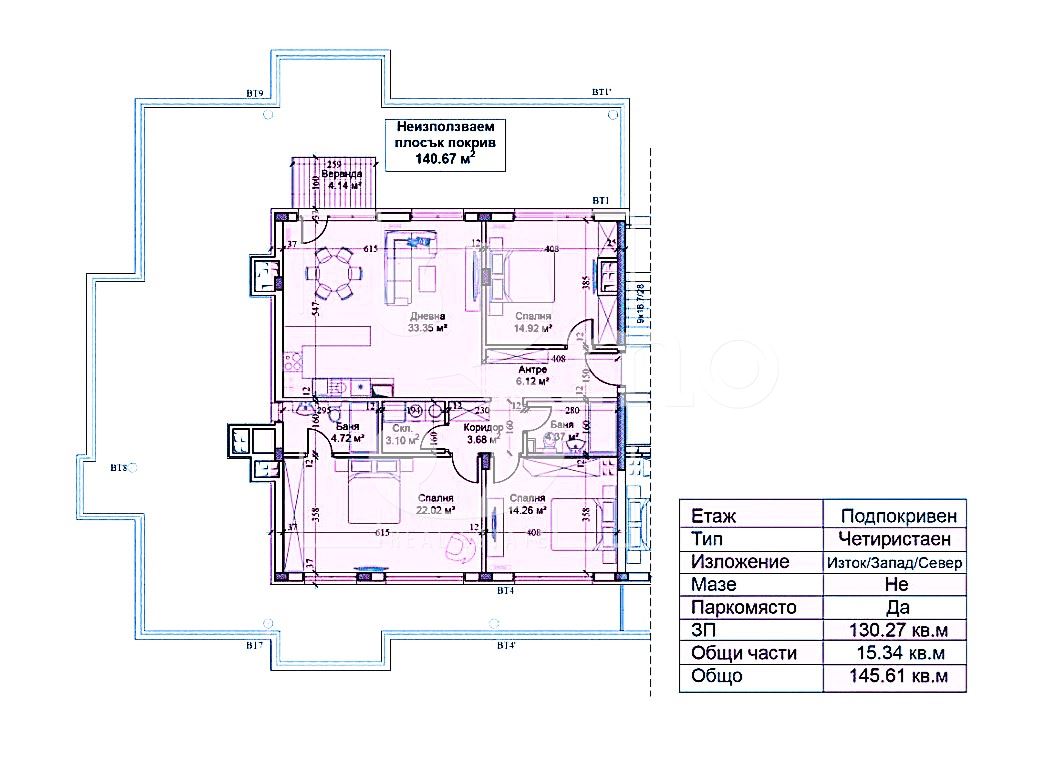
3mo Амалтея има удоволствието да Ви представи изключителен пентхаус с три спални, разположен в бутиков затворен комплекс с едва 30 апартамента – истински оазис на тишина, комфорт и качествен живот в града. Жилището е с обща площ от 145,61 кв.м. (застроена 130,27 кв.м.) и впечатляваща покривна тераса от 140,67 кв.м., която открива невероятна панорамна гледка и предлага безброй възможности – от зелен кът за отдих, до лятна кухня или джакузи под открито небе.
Имотът се състои от: входно антре (6,12 кв.м.), просторна дневна с трапезария и кухня (33,35 кв.м.) с веранда (4,14 кв.м.), три непреходни и светли спални (14,92 кв.м., 14,26 кв.м. и 22 кв.м., като последната е със собствен санитарен възел от 4,72 кв.м.), втори санитарен възел (4,37 кв.м.), коридор (3,68 кв.м.) и складово помещение (3,10 кв.м.). Разположен на последния, четвърти етаж, пентхаусът се радва на тристранно изложение – изток, запад и север, което гарантира естествена светлина през целия ден и уникални панорамни гледки. Това не е просто имот. Това е бъдещият Ви дом - мястото, където ще се раждат спомени и смях, където сутрин светлината на слънцето ще Ви посреща с нежните си лъчи, а вечер ще се наслаждавате на приказен залез от терасата си в компанията на любимите хора, усещайки, че сте точно там, където трябва да бъдете. Локацията е отлична – само на няколко крачки от входа на метростанция „Обеля“, с лесен и бърз достъп до централни булеварди, училища, детски градини и магазини.
Имотът се продава в степен на завършеност по избор – по БДС, до ключ или напълно готов за нанасяне, според желанията на бъдещите собственици. Достъпът до предложеният имот е ограничен само за собствениците, чрез индивидуален асансьорен чип, а целият комплекс разполага с 24/7 видеонаблюдение, портиер, зелени площи и контрол на достъпа.
Сградата е в етап на строителство - пред Акт 14. Планирано Разрешение за ползване в края на 2026 година. Възможно е закупуване на паркомясто или гараж. Комплексът съчетава всички нужни удобства за съвременен градски живот: отлична инфраструктура, бърз транспортен достъп, зелени площи и усещане за общност. Инвеститорът зад проекта е с дългогодишен опит и безупречна репутация в строителството на качествени жилищни сгради в София, като използва материали от висок клас и съвременни технологии за изпълнение. Допълнителен плюс за живот в комплекса е планираната частна детска градина с 24 места, разположена на партера в сградата, с прилежаща градинка за безопасна игра на децата Ви - какво по-хубаво от това да си пиеш кафето, да работиш на лаптопа и да имаш тази привилегия да наблюдаваш децата си как растат и се веселят в сигурна и комфортна среда!
Оферта № 835
Агенция 3mo Амалтея, заедно с лицензирания в БНБ кредитен посредник Кредит Навигатор, Ви предлага напълно безплатно съдействие за избор на най-изгодния кредит, специално съобразен с Вашите нужди.
Детайли
-
№ на имот AML-835
-
Цена €337,000/659,115 лв.
-
Квадратура 286 m²
-
Спални 3
-
Стаи 4
-
Година на строеж 2026
-
Тип имот 4-стаен
-
Етаж 4
-
Етажи 4
-
Обзавеждане Обзаведен
-
Вид строителство Тухла
-
Цена кв.м. 1177
-
Отопление Електричество
-
Ново строителство Да
-
Балкони (бр.) 1
-
Баня с тоалетна (бр.) 2
Лихвен калкулатор
Изчислете вашите месечни ипотечни плащания бързо и лесно с нашия лихвен калкулатор. Въведете общата сума на заема, първоначалното плащане, лихвения процент и срока на заема, за да получите точна прогноза за вашите месечни разходи.
-
Първоначално плащане
-
Размер на заема
-
Месечно плащане
Това е примерен калкулатор. За индивидуална оферта се свържете с нас!
- Аделина Ванчева
- avancheva@zaimota.com
- 0885923239
Подобни имоти
Двустаен апартамент с просторна тераса и красива панорама в сграда пред Акт 14 в ж.к. Люлин, град София
- €129,800/253,867 лв.
- ID: AML-751
- Стаи: 2
- Легло: 1
„3mo“ недвижими имоти продава двустаен апартамент, находящ се в кв. Гео Милев
- €246,000/481,134 лв.
- ID: DR-2791
- Стаи: 2
- Легло: 1
- Вана: 1
Двустаен светъл апартамент в сграда пред Aкт 15 в ж.к. Люлин, град София
- €127,800/249,955 лв.
- ID: AML-750
- Стаи: 2
- Легло: 1
Чудесен едностаен апартамент в модерна сграда до бул. Константин Величков в столицата
- €120,039/234,776 лв.
- ID: AML-1092
- Стая: 1
ИНВЕСТИЦИОНЕН ПАРЦЕЛ С ЛИЦЕ НА ГЛАВЕН ПЪТ – с. Иваняне
- €192,875/377,231 лв.
- ID: AML-1295
Двустаен апартамент за продажба в ж.к. Надежда 4, гр. София
- €155,000/303,154 лв.
- ID: AML-1285
- Стаи: 2
- Легло: 1
Contact me







