3mo Амалтея представя еднофамилна къща за продажба в затворен комплекс в кв. Суходол
- €430,000/841,007 лв.
- AML-936
- ID на оферта
- Къща
- Тип имот
- Тухла
- Вид строителство
- 1748
- Цена кв.м.
- 2027
- Година на строеж
Описание
3mo Амалтея има удоволствието да Ви представи еднофамилна къща за продажба в затворен комплекс от шест еднофамилни жилищни сгради в кв. Суходол.
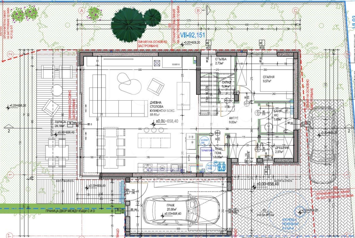
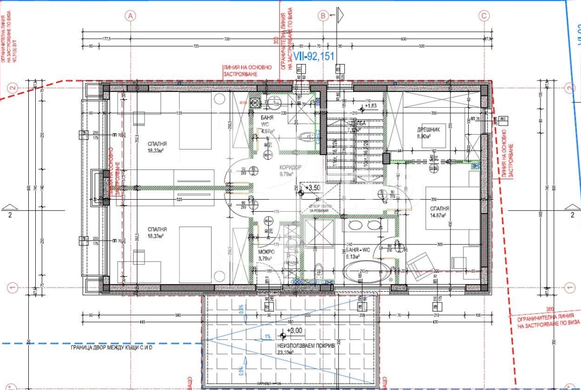
Къщата е на два етажа и е с РЗП 246,52 кв.м. (ЗП на 1-ви етаж-129,32 кв.м., ЗП на 2-ри етаж-117,20 кв.м.). Дворът е с квадратура от 333 кв.м.
Разпределението е както следва:
1-ви етаж – входно антре (9 кв.м.), дневна с трапезария и кухненски бокс (50,55 кв.м.), спалня/кабинет (9,57 кв.м.), дрешник/склад (2,97 кв.м.), техническо помещение (3,95 кв.м.), склад (3,94 кв.м.), баня с тоалетна (3,69 кв.м.), тераса (28,18 кв.м.) и стълби към втория етаж;
2-ри етаж – коридор (9,79 кв.м.), две спални от (18,33 кв.м.), родителска спалня (14,87 кв.м.) с баня с тоалетна (8,13 кв.м), отделна баня с тоалетна (4,67 кв.м.) и мокро помещение (3,79 кв.м.). Къщата разполага със собствен гараж (20,58 кв.м.).
Отоплението на сградата е локално чрез термопомпена климатична система- въздух/вода на електричество. Жилищната сграда ще бъде модерно изградена с най-висок клас материали.
Разрешение за ползване 2027г.
Конструкцията на сградата е монолитна със стоманобетонови колони, греди и плочи. Външните стени са от тухлена зидария с керамични тухли Porotherm.
Покривната конструкция е тип едноскатен покрив.
За мокрите помещения е предвиден влагоустойчив гипсокартон. Дограмата е алуминиева с трислоен стъклопакет. Фасадните стени се предвиждат да бъдат с облицовка от керамични елементи или имитиращи „тухлена зидария“.
Всяка къща е със самостоятелен вход през двора от общата алея за достъп. Дворът ще бъде прецизно оформен с озеленяване, алеи и плочи. Ще има и поливна система за лесна поддръжка на дворното пространство.
Комплексът ще бъде луксозно изграден с всички удобства за живущите. Ще съчетава спокойствие, тишина и уют, като същевременно е в близост до градска среда.
3mo Амалтея, заедно с лицензирания в БНБ кредитен посредник КРЕДИТ НАВИГАТОР, предоставят на своите клиенти възможност да изберат най-изгодния ипотечен кредит при закупуване на своето жилище. Услугата е БЕЗПЛАТНА
Оферта № 936
.
Детайли
-
№ на имот AML-936
-
Цена €430,000/841,007 лв.
-
Квадратура 246 m²
-
Спални 4
-
Стаи 5
-
Година на строеж 2027
-
Тип имот Къща
-
Етажи 2
-
Обзавеждане Необзаведен
-
Вид строителство Тухла
-
Цена кв.м. 1748
-
Отопление Локално
-
Ново строителство Да
-
Баня с тоалетна (бр.) 3
Екстри
Лихвен калкулатор
Изчислете вашите месечни ипотечни плащания бързо и лесно с нашия лихвен калкулатор. Въведете общата сума на заема, първоначалното плащане, лихвения процент и срока на заема, за да получите точна прогноза за вашите месечни разходи.
-
Първоначално плащане
-
Размер на заема
-
Месечно плащане
Това е примерен калкулатор. За индивидуална оферта се свържете с нас!
- Славка Лазарова
- slazarova@zaimota.com
- 0876841074
Подобни имоти
Гарсониера преустроена на двустаен апартамент в ж. к. Надежда 2, гр. София
- €142,300/278,315 лв.
- ID: AML-1257
- Стаи: 2
- Легло: 1
Просторен и слънчев двустаен апартамент за проздажба.
- €144,900/283,400 лв.
- ID: AML-1250
- Стаи: 2
- Легло: 1
Двустаен преустроен на тристаен апартамент за продажба в ж.к. Люлин 7, гр. София
- €150,000/293,375 лв.
- ID: AML-1245
- Стаи: 3
- Легло: 1
Тристаен апартамент за продажба в ж.к. Люлин 5, гр. София
- €134,999/264,035 лв.
- ID: AML-1241
- Стаи: 3
- Легла: 2
Офиси под наем в офис сграда в ж.к. Люлин 2, гр. София
- €1,572/3,075 лв.
- ID: AML-1215
- Стаи: 3
Двустаен преустроен и ремонтиран апартамент за продажба в ж.к. Люлин 2, гр. София
- €159,000/310,977 лв.
- ID: AML-1200
- Стаи: 3
- Легла: 2
Contact me









