„3mo“ недвижими имоти продава двустаен апартамент, находящ се в ж.к. Дружба 2
- €189,000/369,652 лв.
- DR-2227
- ID на оферта
- 2-стаен
- Тип имот
- Тухла
- Вид строителство
- 2546
- Цена кв.м.
- 2025
- Година на строеж
Описание
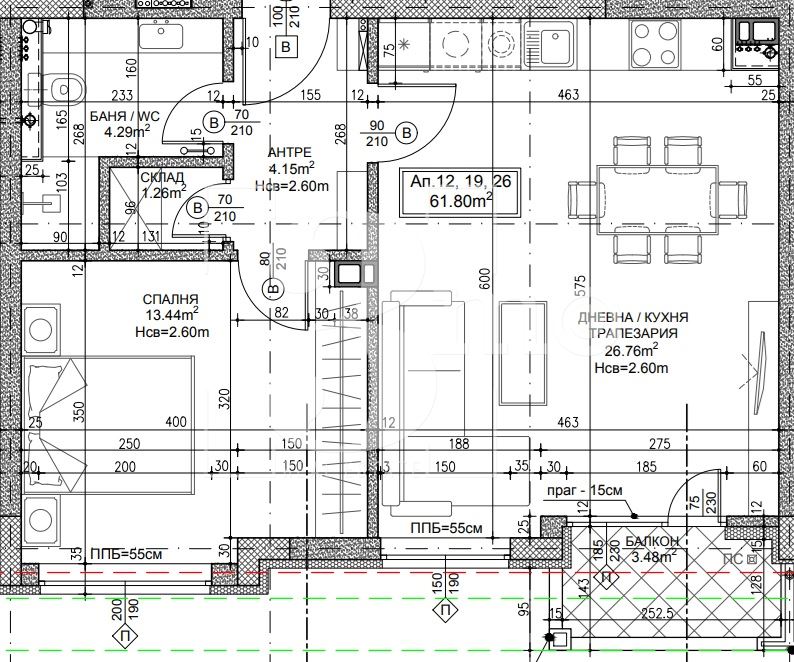
Предлагаме за продажба двустаен апартамент, разположен на трети етаж в сграда с Акт 16.
Имотът е с обща площ от 74.23 кв.м., от които 61.80 кв.м. представляват застроена площ.
Към апартамента има мазе с площ от 4.36 кв.м.
Разпределението му е следното: дневна с кухненски бокс, спалня, баня с wc, склад и тераса.
Изложението е югоизточно.
Отоплението е на ТЕЦ.
Апартаментът ще бъде издаден на шпакловка и замазка, което дава възможност за довършване и обзавеждане по вкус на бъдещите собственици.
Седемкамерна ПВЦ дограма, осигуряваща отлична изолация и енергийна ефективност.
В близост до метростанция Дружба, спирки на градски транспорт, училища и магазини, което осигурява лесен и бърз достъп до всички удобства на района.
Оферта № 2227
Детайли
-
№ на имот DR-2227
-
Цена €189,000/369,652 лв.
-
Квадратура 74 m²
-
Спалня 1
-
Стаи 2
-
Година на строеж 2025
-
Тип имот 2-стаен
-
Етаж 3
-
Етажи 7
-
Обзавеждане Необзаведен
-
Вид строителство Тухла
-
Цена кв.м. 2546
-
Отопление ТЕЦ
-
Ново строителство Да
-
Балкони (бр.) 1
-
Баня с тоалетна (бр.) 1
Лихвен калкулатор
Изчислете вашите месечни ипотечни плащания бързо и лесно с нашия лихвен калкулатор. Въведете общата сума на заема, първоначалното плащане, лихвения процент и срока на заема, за да получите точна прогноза за вашите месечни разходи.
-
Първоначално плащане
-
Размер на заема
-
Месечно плащане
Това е примерен калкулатор. За индивидуална оферта се свържете с нас!
- Владимир Борисов
- vborisov@3mo.bg
- 0884509884
Подобни имоти
Тристаен южен апартамент в затворен бутиков комплекс до входа на метростанция в град София
- €257,000/502,648 лв.
- ID: AML-837
- Стаи: 3
- Легла: 2
Четиристаен апартамент в затворен бутиков комплекс в ж.к. Обеля, град София
- €295,000/576,970 лв.
- ID: AML-835
- Стаи: 4
- Легла: 3
Апартамент с усещане за къща в затворен комплекс до метростанция в град София
- €115,000/224,920 лв.
- ID: AML-943
- Стаи: 2
- Легло: 1
Чудесен апартамент с две спални в луксозна сграда до бул. Константин Величков в столицата
- €205,405/401,737 лв.
- ID: AML-1133
- Стаи: 3
- Легла: 2
3mo Амалтея продава двуетажна къща в град Костинброд
- €358,000/700,187 лв.
- ID: AML-188
Тристаен апартамент с функционално разпределение в нова сграда в ж.к. Люлин, град София
- €171,800/336,012 лв.
- ID: AML-610
- Стаи: 3
- Легла: 2
Contact me












