“3mo” недвижими имоти продава, 2-стаен апартамент в кв.Хаджи Димитър
- €195,000/381,387 лв.
- AKD-32
- ID на оферта
- 2-стаен
- Тип имот
- Тухла
- Вид строителство
- 2546
- Цена кв.м.
- 2026
- Година на строеж
Описание
Без комисион от купувача. Цена на инвеститор!!!
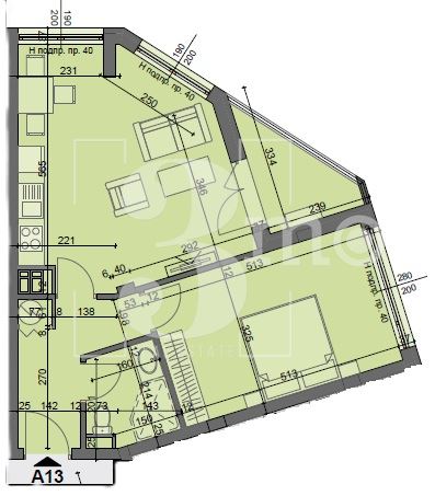
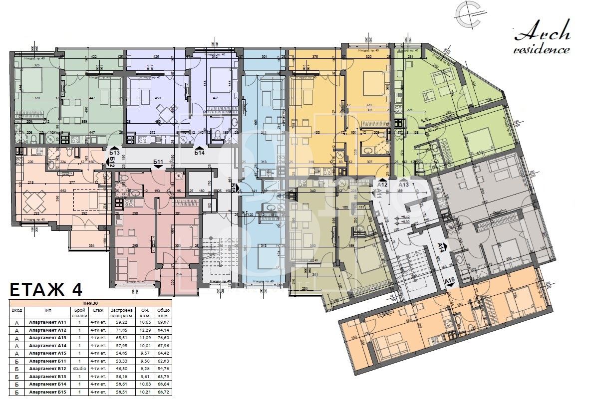
3mo недвижими имоти продава двустаен апартамент в кв. Хаджи Димитър. Имотът се намира на четвърти етаж и се състои от: дневна с трапезария и кухня (24,23 кв.м.), спалня (16,65 кв.м.), баня с тоалетна (3,84 кв.м.), склад (0,47 кв.м.), балкон (4,79 кв.м.) и входно антре (5,99 кв.м.). Общата площ на апартамента е 76,60 кв.м., от които застроената площ е 65,51 кв.м.
Отоплението е предвидено на: ток с изградена сплит система във всеки апартамент.
Разрешение за строеж в сила от 06.04.2024г., открита стоителна площадка на 13.05.2024г.
Сграда не етап изграждане на груб строеж.
Очакван АКТ 16 - 11.2026 г.
Локацията на сградата е в близост до моста „Чавдар“, на 350м. от метростанция „Хаджи Димитър“, на 120м. от автобуснаи тролейбусна спирка и на 600м. е парк “Вл.Заимов”. Районът, в който е разположнен, е повече от комуникативен.
Сградата е с два входа и две подземни нива. Секция А - 9 етажа, секция Б - 7 етажа. Външните стени са тухлени с дебелина 25 см., с ефективна топлоизолационна система с дебелина 12 см. Дограмата е с трислоен стъклопакет с нискоемисионно “К” стъкло.
Стени – машинна гипсова мазилка ; Подове – циментово пясъчна замазка ; Тераси – мразоустойчив гранитогрес ; Блиндирана входна врата ;
Към апартамента може да се закупи отделно паркомясто/гараж на цени от 25 000 евро до 45 000 евро с ДДС (в зависимост от вида и големината).
Предлагаме и други апартаменти в същата сграда!
Оферта N:32
Детайли
-
№ на имот AKD-32
-
Цена €195,000/381,387 лв.
-
Квадратура 77 m²
-
Спалня 1
-
Стаи 2
-
Година на строеж 2026
-
Тип имот 2-стаен
-
Етажи 9
-
Обзавеждане Необзаведен
-
Вид строителство Тухла
-
Цена кв.м. 2546
-
Отопление Електричество
-
Ново строителство Да
-
Балкони (бр.) 1
-
Баня с тоалетна (бр.) 1
Лихвен калкулатор
Изчислете вашите месечни ипотечни плащания бързо и лесно с нашия лихвен калкулатор. Въведете общата сума на заема, първоначалното плащане, лихвения процент и срока на заема, за да получите точна прогноза за вашите месечни разходи.
-
Първоначално плащане
-
Размер на заема
-
Месечно плащане
Това е примерен калкулатор. За индивидуална оферта се свържете с нас!
- Таня Иванова
- tivanova@3mo.bg
- 0886432546
Подобни имоти
Тристаен южен апартамент в затворен бутиков комплекс до входа на метростанция в град София
- €257,000/502,648 лв.
- ID: AML-837
- Стаи: 3
- Легла: 2
Четиристаен апартамент в затворен бутиков комплекс в ж.к. Обеля, град София
- €295,000/576,970 лв.
- ID: AML-835
- Стаи: 4
- Легла: 3
Апартамент с усещане за къща в затворен комплекс до метростанция в град София
- €115,000/224,920 лв.
- ID: AML-943
- Стаи: 2
- Легло: 1
Чудесен апартамент с две спални в луксозна сграда до бул. Константин Величков в столицата
- €205,405/401,737 лв.
- ID: AML-1133
- Стаи: 3
- Легла: 2
3mo Амалтея продава двуетажна къща в град Костинброд
- €358,000/700,187 лв.
- ID: AML-188
Тристаен апартамент с функционално разпределение в нова сграда в ж.к. Люлин, град София
- €171,800/336,012 лв.
- ID: AML-610
- Стаи: 3
- Легла: 2
Contact me








