- AML-1150
- ID на оферта
- 2-стаен
- Тип имот
- Тухла
- Вид строителство
- 1740
- Цена кв.м.
- 2027
- Година на строеж
Описание
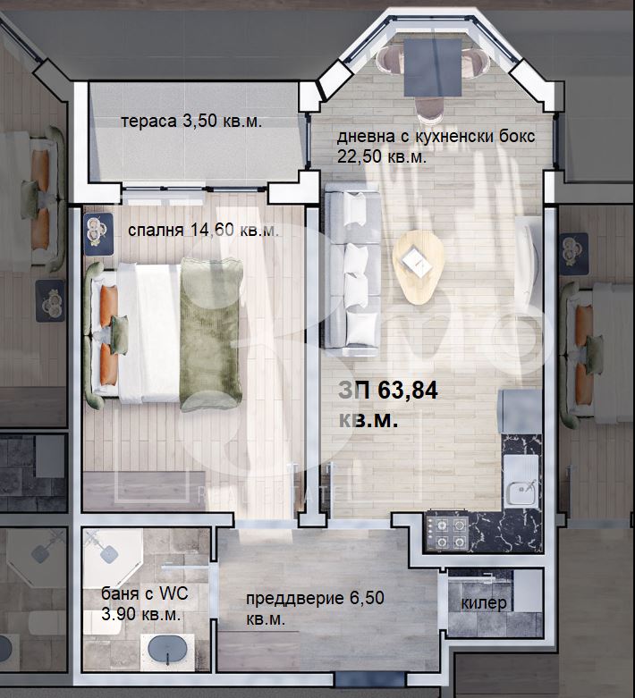
3mo Амалтея продава двустаен апартамент в ж.к. Люлин-10. Жилището е с чиста площ 63,84 кв.м., а с общите части е 80,56 кв.м. Разположено на ет. 4/7, в компактна и функционална сграда. Състои се от дневна с кухненски бокс (22,50 кв.м.), просторна спалня (14,60 кв.м.), тераса (3,50 кв.м.), баня с тоалетна, килер и преддверие. Подходящо е както за лично ползване, така и за инвестиция с цел отдаване под наем.
Строителството стартира през 2025 г. и ще бъде завършено през 2027 г.
Сградата ще бъде изградена със стоманобетонова конструкция, тухлени външни и вътрешни стени и качествени довършителни материали. Апартаментите ще се предават на шпакловка и замазка, с монтирани блиндирани входни врати, PVC дограма със стъклопакет, изградени електро- и ВиК инсталации, както и подготвени изводи за телефон, интернет и домофон.
Общите части ще бъдат завършени с гранитогрес и луксозно изпълнение – с асансьор, топлоизолиран покрив, осветление по проект и озеленяване на дворното пространство с монтирано градинско осветление.
Сградата съчетава съвременен стил, функционалност и комфорт, като осигурява уютна градска среда в един от най-предпочитаните райони на „Люлин“. Локацията е изключително удобна – районът е добре устроен и предлага всичко необходимо за комфортен живот:
отлична транспортна свързаност – на няколко минути от метростанция „Люлин“, спирки на градския транспорт и бърз достъп до центъра на София;
в близост има училища, детски градини и ясли, което прави района удобен за семейства;
наоколо ще откриете големи търговски вериги, супермаркети и квартални магазини;
непосредствената близост до обновения Западен парк предлага зелени пространства за разходки, спорт и отдих.
Оферта № 1150
Детайли
-
№ на имот AML-1150
-
Цена €140,975/275,723 лв.
-
Квадратура 81 m²
-
Спалня 1
-
Стаи 2
-
Година на строеж 2027
-
Тип имот 2-стаен
-
Етаж 4
-
Етажи 7
-
Обзавеждане Необзаведен
-
Вид строителство Тухла
-
Цена кв.м. 1740
-
Отопление ТЕЦ
-
Ново строителство Да
-
Балкони (бр.) 1
-
Баня с тоалетна (бр.) 1
Лихвен калкулатор
Изчислете вашите месечни ипотечни плащания бързо и лесно с нашия лихвен калкулатор. Въведете общата сума на заема, първоначалното плащане, лихвения процент и срока на заема, за да получите точна прогноза за вашите месечни разходи.
-
Първоначално плащане
-
Размер на заема
-
Месечно плащане
Това е примерен калкулатор. За индивидуална оферта се свържете с нас!
- Ели Георгиева
- egeorgieva@zaimota.com
- 0879563102
Подобни имоти
Тристаен южен апартамент в затворен бутиков комплекс до входа на метростанция в град София
- €257,000/502,648 лв.
- ID: AML-837
- Стаи: 3
- Легла: 2
Четиристаен апартамент в затворен бутиков комплекс в ж.к. Обеля, град София
- €295,000/576,970 лв.
- ID: AML-835
- Стаи: 4
- Легла: 3
Апартамент с усещане за къща в затворен комплекс до метростанция в град София
- €115,000/224,920 лв.
- ID: AML-943
- Стаи: 2
- Легло: 1
Чудесен апартамент с две спални в луксозна сграда до бул. Константин Величков в столицата
- €205,405/401,737 лв.
- ID: AML-1133
- Стаи: 3
- Легла: 2
3mo Амалтея продава двуетажна къща в град Костинброд
- €358,000/700,187 лв.
- ID: AML-188
Тристаен апартамент с функционално разпределение в нова сграда в ж.к. Люлин, град София
- €171,800/336,012 лв.
- ID: AML-610
- Стаи: 3
- Легла: 2
Contact me


