- AML-1081
- ID на оферта
- 3-стаен
- Тип имот
- Тухла
- Вид строителство
- 3150
- Цена кв.м.
- 2028
- Година на строеж
Описание
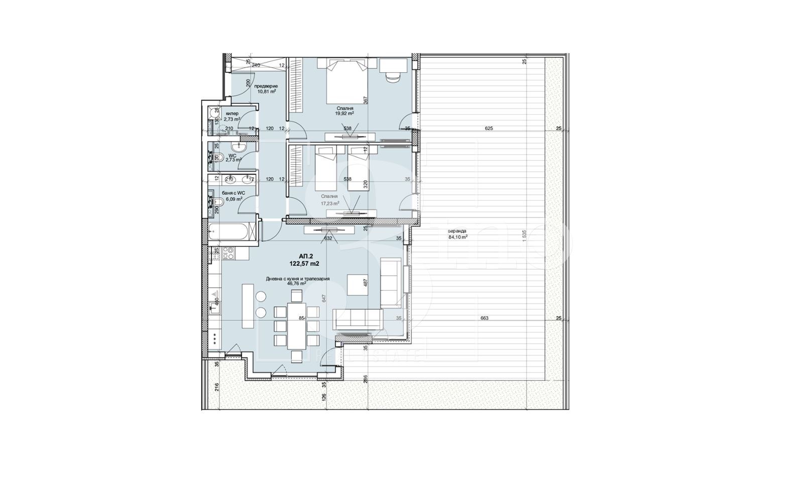
3mo Амалтея има удоволствието да Ви предложи прекрасен тристаен апартамент в луксозен жилищен комплекс в район Лозенец. Предложеният имот е с обща площ от 144,96 кв.м. и (ЗП 122,57 кв.м.) и има следното разпределение: входно преддверие (10,81 кв.м.), просторна дневна с кухненски бокс и трапезария (46,76 кв.м.) с излаз към голяма веранда (84,10 кв.м.), спалня (19,92 кв.м.), от която се излиза на верандата, втора спалня (17,23 кв.м.) отново с излаз към верандата, килер (2,73 кв.м.), тоалетна (2,73 кв.м.) и баня с тоалетна (6,09 кв.м.). Апартаментът е с изложение юг-изток, юг-запад и е разположен на партер. Обявената цена е без ДДС. Продава се в степен на завършеност по избор на клиента: по БДС, до ключ или изцяло обзаведен и готов за нанасяне. Планирано разрешение за ползване през 2028-ма година.
Комплексът е разположен върху терен от 50 дка, от които над 30 дка са обособени като озеленени паркове и градини. Изцяло подземният паркинг на две нива позволява липса на автомобилно движение във вътрешния двор, което осигурява спокойствие, чист въздух и безопасност за децата. Вътрешната паркова зона включва 9 детски площадки, открит детски фитнес, водни огледала, фонтани и алеи за разходка. За удобството на живущите са предвидени фитнес център с уелнес зона, ресторант с градина и детски кът, както и 18 търговски обекта – хранителни и нехранителни магазини, които ще се управляват и поддържат от инвеститора дори след завършване на проекта. Общите части, зелените площи и алеите ще бъдат професионално почиствани и поддържани целогодишно.
Безопасността в комплекса е гарантирана чрез 24/7 видеонаблюдение, контролиран достъп и мобилен патрул. Управлението на имота се извършва от фирма под контрола на инвеститора, с цел гарантиране на дългосрочно качество и спокойствие за всички живущи.
Апартаментите са с южно изложение и просторни разпределения, с високо ниво на енергийна ефективност. Използвани са висококачествени материали, включително алуминиева дограма Schüco AWS 75 SI със скрит обков и троен стъклопакет Guardian Glass с дебелина 46 мм – четирисезонно външно стъкло, среден безцветен слой и вътрешно нискоемисионно покритие. Фасадите са вентилируеми, с алуминиева конструкция, облицована с клинкерни плочи ABC Klinkergruppe, и 10 см каменно-минерална вата с пародифузна и ветрозащитна мембрана.
Отоплението и охлаждането във всеки апартамент се осъществяват чрез индивидуална термопомпа въздух-вода Toshiba, с възможност за захранване на бойлер, конвектори, лира в банята и система за водно подово отопление във всяка стая. Общите части на сградите са завършени луксозно и оборудвани с безшумни електрически асансьори Schindler.
Комплексът е създаден с визия за комфорт, сигурност и висок стандарт на живот, съчетавайки модерна архитектура, природна среда и първокласна инфраструктура. В комплекса има такса поддръжка.
3mo Амалтея, заедно с лицензирания в БНБ кредитен посредник КРЕДИТ НАВИГАТОР предоставят на своите клиенти възможност да изберат най-изгодният ипотечен кредит при закупуване на своето жилище. Услугата е БЕЗПЛАТНА.
Оферта № 1081
Детайли
-
№ на имот AML-1081
-
Цена €456,634/893,098 лв.
-
Квадратура 145 m²
-
Спални 2
-
Стаи 3
-
Година на строеж 2028
-
Тип имот 3-стаен
-
Етаж 1
-
Етажи 9
-
Обзавеждане Необзаведен
-
Вид строителство Тухла
-
Цена кв.м. 3150
-
Отопление Електричество
-
Ново строителство Да
-
Балкони (бр.) 1
-
Тоалетни (бр.) 1
-
Баня с тоалетна (бр.) 1
Лихвен калкулатор
Изчислете вашите месечни ипотечни плащания бързо и лесно с нашия лихвен калкулатор. Въведете общата сума на заема, първоначалното плащане, лихвения процент и срока на заема, за да получите точна прогноза за вашите месечни разходи.
-
Първоначално плащане
-
Размер на заема
-
Месечно плащане
Това е примерен калкулатор. За индивидуална оферта се свържете с нас!
- Аделина Ванчева
- avancheva@zaimota.com
- 0885923239
Подобни имоти
Тристаен южен апартамент в затворен бутиков комплекс до входа на метростанция в град София
- €257,000/502,648 лв.
- ID: AML-837
- Стаи: 3
- Легла: 2
Четиристаен апартамент в затворен бутиков комплекс в ж.к. Обеля, град София
- €295,000/576,970 лв.
- ID: AML-835
- Стаи: 4
- Легла: 3
Апартамент с усещане за къща в затворен комплекс до метростанция в град София
- €115,000/224,920 лв.
- ID: AML-943
- Стаи: 2
- Легло: 1
Чудесен апартамент с две спални в луксозна сграда до бул. Константин Величков в столицата
- €205,405/401,737 лв.
- ID: AML-1133
- Стаи: 3
- Легла: 2
3mo Амалтея продава двуетажна къща в град Костинброд
- €358,000/700,187 лв.
- ID: AML-188
Тристаен апартамент с функционално разпределение в нова сграда в ж.к. Люлин, град София
- €171,800/336,012 лв.
- ID: AML-610
- Стаи: 3
- Легла: 2
Contact me







