- AML-1052
- ID на оферта
- 3-стаен
- Тип имот
- Тухла
- Вид строителство
- 2233
- Цена кв.м.
- 2025
- Година на строеж
Описание
3mo Амалтея продава тристаен апартамент в нова сграда в ж.к. Люлин 2, микрорайон с отлична инфраструктура.
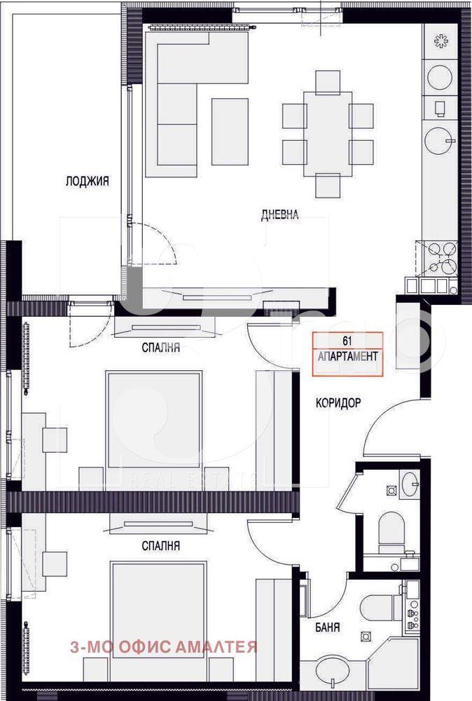
Жилището е с изключително функционално разпределение и се състои от: просторна дневна с трапезария и кухненски бокс, две непреходни спални, две сервизни помещения и тераса. Квадратурата е 102 кв.м. с общи части и 85 кв.м. чиста площ. Апартаментът е със западно изложение и се намира на единадесети етаж.
Издава се на фина шпакловка и замазка с блиндирана входна врата, петкамерна PVC дограма с монтиран двоен стъклопакет. Отоплението е на ТЕЦ. Има възможност за покупка на подземно паркомясто. Етап на строителство издаден Акт 15. Общите части са луксозно изпълнени с окачени тавани и светло сиви гранитни плочи. За удобство на собствениците са монтирани два високоскоростни асансьора марка ORONA. Контролът на достъп ще се осъществява с индивидуален чип и видео домофонна инсталация. Във всеки апартамент е предвиден видео домофон със слушалка, звънец и звънчев бутон. Сградата разполага със собствен двор, с много зеленина и места за почивка.
Местоположението на сградата е в близост до метростанция, градски транспорт, множество търговски обекти, банкови офиси, детски градини и училища.
3mo Амалтея, заедно с лицензирания в БНБ кредитен посредник КРЕДИТ НАВИГАТОР предоставят на своите клиенти възможност да изберат най-изгодният ипотечен кредит при закупуване на своето жилище. Услугата е БЕЗПЛАТНА.
Оферта № 1052
Детайли
-
№ на имот AML-1052
-
Цена €227,806/445,550 лв.
-
Квадратура 102 m²
-
Година на строеж 2025
-
Тип имот 3-стаен
-
Етаж 11
-
Етажи 16
-
Вид строителство Тухла
-
Цена кв.м. 2233
-
Отопление ТЕЦ
Лихвен калкулатор
Изчислете вашите месечни ипотечни плащания бързо и лесно с нашия лихвен калкулатор. Въведете общата сума на заема, първоначалното плащане, лихвения процент и срока на заема, за да получите точна прогноза за вашите месечни разходи.
-
Първоначално плащане
-
Размер на заема
-
Месечно плащане
Това е примерен калкулатор. За индивидуална оферта се свържете с нас!
- Славка Лазарова
- slazarova@zaimota.com
- 0876841074
Подобни имоти
Тристаен южен апартамент в затворен бутиков комплекс до входа на метростанция в град София
- €257,000/502,648 лв.
- ID: AML-837
- Стаи: 3
- Легла: 2
Четиристаен апартамент в затворен бутиков комплекс в ж.к. Обеля, град София
- €295,000/576,970 лв.
- ID: AML-835
- Стаи: 4
- Легла: 3
Апартамент с усещане за къща в затворен комплекс до метростанция в град София
- €115,000/224,920 лв.
- ID: AML-943
- Стаи: 2
- Легло: 1
Чудесен апартамент с две спални в луксозна сграда до бул. Константин Величков в столицата
- €205,405/401,737 лв.
- ID: AML-1133
- Стаи: 3
- Легла: 2
3mo Амалтея продава двуетажна къща в град Костинброд
- €358,000/700,187 лв.
- ID: AML-188
Тристаен апартамент с функционално разпределение в нова сграда в ж.к. Люлин, град София
- €171,800/336,012 лв.
- ID: AML-610
- Стаи: 3
- Легла: 2
Contact me












