- AML-1036
- ID на оферта
- 3-стаен
- Тип имот
- Тухла
- Вид строителство
- 2111
- Цена кв.м.
- 2025
- Година на строеж
Описание
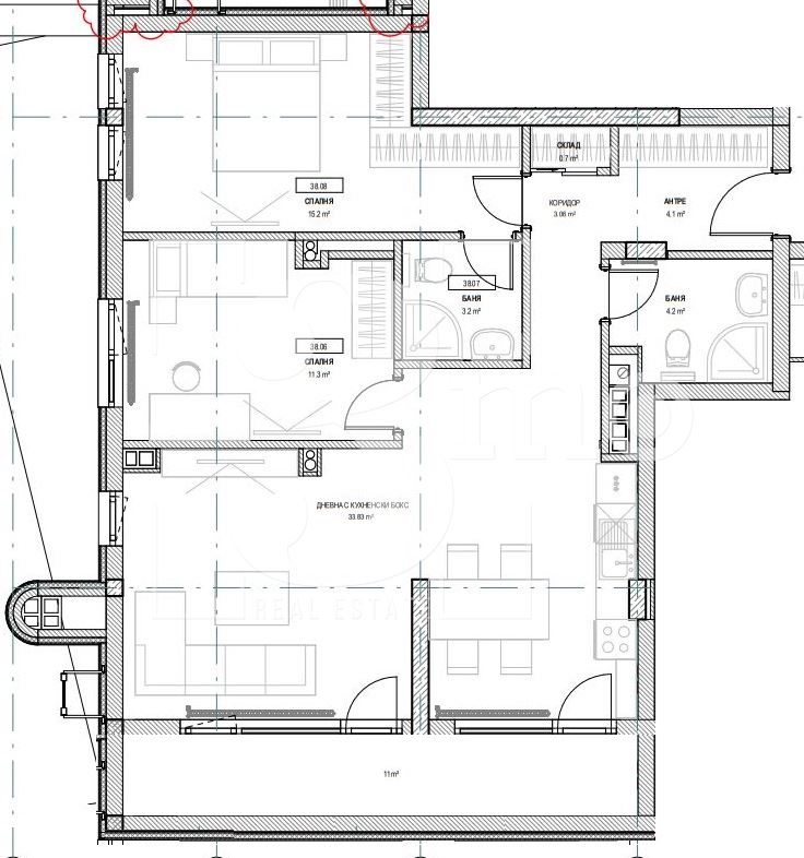
3mo агенция Амалтея продава тристаен апартамент с Акт 16 и Разрешение за ползване от м. април 2025 г. Жилището е със застроена площ 93,40 кв.м., прилежаща покривна тераса с площ 11 кв.м. и обща площ 125,13 кв.м., намира се на седми - последен етаж, с изложение югозапад-северозапад. Състои се от дневна с кухня и трапезария (30 кв.м.), две спални (14 кв.м. и 15 кв.м.), две бани с тоалетна (3 кв.м. и 4 кв.м.), склад (1 кв.м.), антре (4 кв.м.), коридор (5 кв.м.) и тераса (11 кв.м.).
Сградата е проектирана от архитектурно бюро А и А архитекти - носител на шест награди Сграда на годината и автор на редица престижни проекти. Отличава се със съвременна визия, озеленен двор, контролиран достъп на влизане и високо качество на изпълнение.
Техническа спецификация и изпълнение:
Стоманобетонна конструкция и външни тухлени стени 25 см и 10см висок клас топлоизолация Baumit;
Плосък покрив с XPS изолация и безшевни улуци;
5 камерна немска PVC дограма TROCAL с алуминиево покритие от външна страна и трислоен стъклопакет
Гранитни настилки във фоайе и общи части;
Контрол на достъпа и централно видеонаблюдение с 16бр. камери;
Блиндирани входни врати на апартаментите;
Безшумен 13 местен испански асансьор ORONA;
Изградена вътрешна инсталация за централно отопление от ТЕЦ и монтирани радиатори;
Изводи за климатици;
Водопровод и канализация със шумоизолиращи тръби;
На партера на сградата е разположен гараж със свободни паркоместа на цени от 28000 EUR.
Районът е с отлична инфраструктура, в близост се намират спирки на автобуси №№ 42 и 111, трамвай № 8 и тролей № 7, а на 500 м е метростанция Люлин.
Оферта № 1036
Детайли
-
№ на имот AML-1036
-
Цена €264,210/516,750 лв.
-
Квадратура 125 m²
-
Спални 2
-
Стаи 3
-
Година на строеж 2025
-
Тип имот 3-стаен
-
Етаж 7
-
Етажи 7
-
Вид строителство Тухла
-
Цена кв.м. 2111
-
Отопление ТЕЦ
-
Ново строителство Да
-
Балкони (бр.) 1
-
Баня с тоалетна (бр.) 2
Лихвен калкулатор
Изчислете вашите месечни ипотечни плащания бързо и лесно с нашия лихвен калкулатор. Въведете общата сума на заема, първоначалното плащане, лихвения процент и срока на заема, за да получите точна прогноза за вашите месечни разходи.
-
Първоначално плащане
-
Размер на заема
-
Месечно плащане
Това е примерен калкулатор. За индивидуална оферта се свържете с нас!
- Христо Генадиев
- hgenadiev@zaimota.com
- 0876841078
Подобни имоти
Тристаен южен апартамент в затворен бутиков комплекс до входа на метростанция в град София
- €257,000/502,648 лв.
- ID: AML-837
- Стаи: 3
- Легла: 2
Четиристаен апартамент в затворен бутиков комплекс в ж.к. Обеля, град София
- €295,000/576,970 лв.
- ID: AML-835
- Стаи: 4
- Легла: 3
Апартамент с усещане за къща в затворен комплекс до метростанция в град София
- €115,000/224,920 лв.
- ID: AML-943
- Стаи: 2
- Легло: 1
Чудесен апартамент с две спални в луксозна сграда до бул. Константин Величков в столицата
- €205,405/401,737 лв.
- ID: AML-1133
- Стаи: 3
- Легла: 2
3mo Амалтея продава двуетажна къща в град Костинброд
- €358,000/700,187 лв.
- ID: AML-188
Тристаен апартамент с функционално разпределение в нова сграда в ж.к. Люлин, град София
- €171,800/336,012 лв.
- ID: AML-610
- Стаи: 3
- Легла: 2
Contact me






























