Тристаен апартамент с Акт 14, за продажба в ж.к. Люлин-център, гр. София
- €300,080/586,905 лв.
- AML-994
- ID на оферта
- 3-стаен
- Тип имот
- Тухла
- Вид строителство
- 2200
- Цена кв.м.
- 2025
- Година на строеж
Описание
100% плащане след Акт 16! Резервация с 5000 EUR!
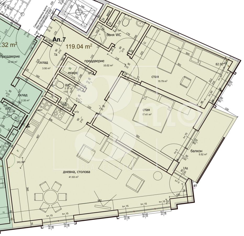
Агенция ТРИМО ИМОТИ - офис Амалтея продава тристаен апартамент в нова сграда с Акт 14 и срок на завършване м. декември 2025 г. Жилището е със застроена площ 119.04 кв.м., обща площ 136,40 кв.м., намира се на пети от общо седем етажа, с изложение юг-югоизток. Състои се от дневна с кухня (41,63 кв.м.), две спални (15,79 кв.м. и 17,41 кв.м.), склад (3,50 кв.м.), мокро пом. (1,70 кв.м.), две бани с тоалетна (4,27 кв.м. и 2,17 кв.м.), коридор (10,02 кв.м.) и балкон (5,52 кв.м.).
Имотът ще бъде завършен на шпакловка и замазка, с изградено индивидуално подово отопление на ТЕЦ, с марката Rehau, и климатична инсталация multi split с монтирани едно външно и три вътрешни тела. Сградата е с висок клас материали, зидария Wienerberger, дограма Rehau - седемкамерна с троен стъклопакет 4 сезона, асансьор Thyssenkrupp - 8-местен, от ново smart поколение, луксозни общи части от естествен камък гранит.
В сградата има и други свободни апартаменти, както и свободни гаражи в сутерена.
В близост до имота има спирка на тролеи № 7, а на 500 м е метростанция Люлин.
Оферта 994
Детайли
-
№ на имот AML-994
-
Цена €300,080/586,905 лв.
-
Квадратура 136 m²
-
Спални 2
-
Стаи 3
-
Година на строеж 2025
-
Тип имот 3-стаен
-
Етаж 5
-
Етажи 7
-
Вид строителство Тухла
-
Цена кв.м. 2200
-
Отопление ТЕЦ
-
Ново строителство Да
-
Балкони (бр.) 1
-
Баня с тоалетна (бр.) 2
Лихвен калкулатор
Изчислете вашите месечни ипотечни плащания бързо и лесно с нашия лихвен калкулатор. Въведете общата сума на заема, първоначалното плащане, лихвения процент и срока на заема, за да получите точна прогноза за вашите месечни разходи.
-
Първоначално плащане
-
Размер на заема
-
Месечно плащане
Това е примерен калкулатор. За индивидуална оферта се свържете с нас!
- Христо Генадиев
- hgenadiev@zaimota.com
- 0876841078
Подобни имоти
Тристаен южен апартамент в затворен бутиков комплекс до входа на метростанция в град София
- €257,000/502,648 лв.
- ID: AML-837
- Стаи: 3
- Легла: 2
Четиристаен апартамент в затворен бутиков комплекс в ж.к. Обеля, град София
- €295,000/576,970 лв.
- ID: AML-835
- Стаи: 4
- Легла: 3
Апартамент с усещане за къща в затворен комплекс до метростанция в град София
- €115,000/224,920 лв.
- ID: AML-943
- Стаи: 2
- Легло: 1
Чудесен апартамент с две спални в луксозна сграда до бул. Константин Величков в столицата
- €205,405/401,737 лв.
- ID: AML-1133
- Стаи: 3
- Легла: 2
3mo Амалтея продава двуетажна къща в град Костинброд
- €358,000/700,187 лв.
- ID: AML-188
Тристаен апартамент с функционално разпределение в нова сграда в ж.к. Люлин, град София
- €171,800/336,012 лв.
- ID: AML-610
- Стаи: 3
- Легла: 2
Contact me












