- AKD-26
- ID на оферта
- 3-стаен
- Тип имот
- Тухла
- Вид строителство
- 2200
- Цена кв.м.
- 2026
- Година на строеж
Описание
Без комисион от купувача. Цена на инвеститор!!!
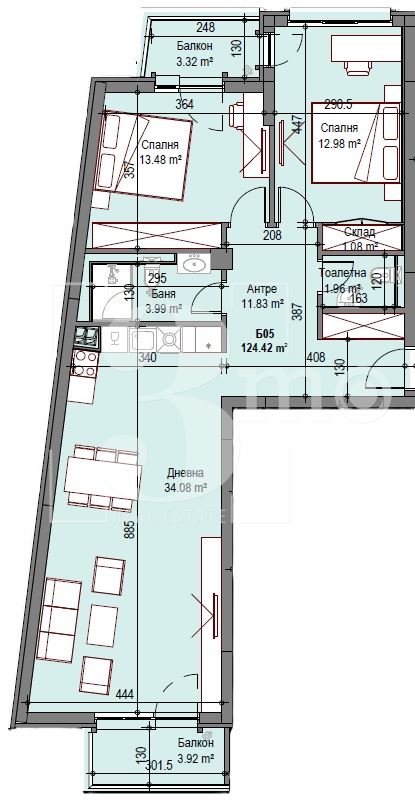
3mo недвижими имоти продава тристаен апартамент в кв. Сухата река. Имотът се намира на втори етаж и се състои от: дневна с кухненски бокс (34,08 кв.м.), две спални (13,48 кв.м. ; 12,98 кв.м.), антре (11,83 кв.м.), балкон (към дневната, 3,92 кв.м.), втори балкон (към спалните, 3,32 кв.м.), баня с тоалетна (3,99 кв.м.), отделна тоалетна (1,96 кв.м.) и склад (към едната спалня, 1,08 кв.м.). Общата площ на апартамента е 124,42 кв.м., от които застроената площ е 106,02 кв.м. Отопление: изводи за климатици във всяка стая; радиатори ТЕЦ; подово отопление в баните.
Сградата е с получен АКТ 14!
Очакван АКТ 16 в края на 2026 г.
Централното, но същевременно тихо и спокойно местоположение на сградата е основен приоритет за собствениците.
Намира се на пешеходно разстояние от: метростанции Хаджи Димитър ( 3 мин.) и Театрална (13 мин), училище 143 ОУ (5 мин); детски градини Дъга и Слънце (5 мин.), парк-градина Площад родина (1 мин.), парк Заимов (13 мин.), BILLA Черковна и BILLA В. Вазов (3 мин.).
Районът е с изключително добре изградена инфраструктура.
Апартаментът се издава по БДС: Стени – шпакловка ; Подове – замазка;
За прозорците е избрана дограма с трислоен стъклопакет с К стъкло профил;
Входната врата на апартамента е блиндирана;
Към всяко жилище са осигурени звънчева, телефонна и видеодомофонна инсталации, мрежа за включване на кабелна телевизия и интернет.
Сградите са топлоизолирани с 10 см EPS изолация. Покривите са топлоизолирани с XPS изолация 10 см и двойно хидроизолирани. Всички тераси също са хидроизолирани.
Сграда от висок клас строителство:
* Фасадно лед осветление и декоративно градинско осветление, което да очертае парцела и зелените площи
* Система за контрол на достъпа към сградата и подземния гараж
* Система за видеонаблюдение, което обхваща периметъра около сградата
* Видеодомофонна система с контрол на достъп с карта или чипове
* СОТ система за всеки апартамент
* Електронни водомери при които цялата информация ще се сканира от входа на сградата
* Изводи за електрически щори за всеки прозорец в жилищната част
* Изводи за климатици във всяка стая
* Изводи за радиатори ТЕЦ
* Подово отопление в баните и изводи за поставяне на лири
* Блиндирани врати.
Към апартамента може да се закупи отделно паркомясто на цени 25 000 - 30 000 евро с ДДС.
Предлагаме и други жилища в същата сграда.
Оферта N:26
Детайли
-
№ на имот AKD-26
-
Цена €273,724/535,358 лв.
-
Квадратура 124 m²
-
Спални 2
-
Стаи 3
-
Година на строеж 2026
-
Тип имот 3-стаен
-
Етаж 2
-
Етажи 9
-
Обзавеждане Необзаведен
-
Вид строителство Тухла
-
Цена кв.м. 2200
-
Отопление ТЕЦ
-
Ново строителство Да
-
Балкони (бр.) 2
-
Тоалетни (бр.) 1
-
Баня с тоалетна (бр.) 1
Лихвен калкулатор
Изчислете вашите месечни ипотечни плащания бързо и лесно с нашия лихвен калкулатор. Въведете общата сума на заема, първоначалното плащане, лихвения процент и срока на заема, за да получите точна прогноза за вашите месечни разходи.
-
Първоначално плащане
-
Размер на заема
-
Месечно плащане
Това е примерен калкулатор. За индивидуална оферта се свържете с нас!
- Таня Иванова
- tivanova@3mo.bg
- 0886432546
Подобни имоти
Тристаен южен апартамент в затворен бутиков комплекс до входа на метростанция в град София
- €257,000/502,648 лв.
- ID: AML-837
- Стаи: 3
- Легла: 2
Четиристаен апартамент в затворен бутиков комплекс в ж.к. Обеля, град София
- €295,000/576,970 лв.
- ID: AML-835
- Стаи: 4
- Легла: 3
Апартамент с усещане за къща в затворен комплекс до метростанция в град София
- €115,000/224,920 лв.
- ID: AML-943
- Стаи: 2
- Легло: 1
Чудесен апартамент с две спални в луксозна сграда до бул. Константин Величков в столицата
- €205,405/401,737 лв.
- ID: AML-1133
- Стаи: 3
- Легла: 2
3mo Амалтея продава двуетажна къща в град Костинброд
- €358,000/700,187 лв.
- ID: AML-188
Тристаен апартамент с функционално разпределение в нова сграда в ж.к. Люлин, град София
- €171,800/336,012 лв.
- ID: AML-610
- Стаи: 3
- Легла: 2
Contact me








