Продава просторен 4-стаен апартамент в бутикова сграда в ж.к. “Банишора”, София
- €270,000/528,074 лв.
- AML-968
- ID на оферта
- 4-стаен
- Тип имот
- Тухла
- Вид строителство
- 1942
- Цена кв.м.
- 2027
- Година на строеж
Описание
3mo Амалтея Ви представя просторен четиристаен апартамент с три спални в бутикова сграда с модерна визия, разположена в ж.к. Банишора, само на крачка от ул. „Опълченска“ и центъра на града.
Сградата е с едва 20 апартамента – съчетание на уединение, комфорт и висококачествено строителство.
🏢 Характеристики на апартамента:
Етаж: 4/7
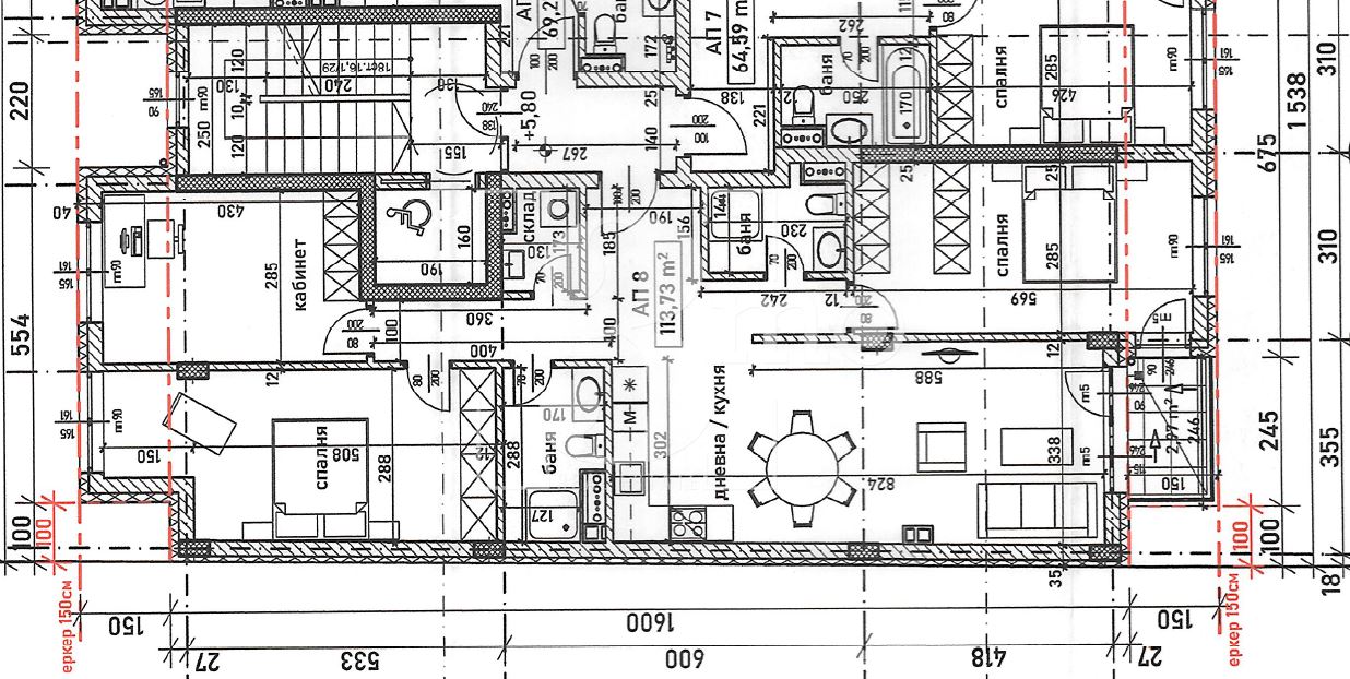
Площ: ЗП 113,73 кв.м с общите части е 139,03 кв.м.
Разпределение: дневна 28,84 кв.м, три спални (17,45 кв.м, 16,25 кв.м, 12,26 кв.м), две бани с WC, склад, тераса
Изложение: югозапад / североизток
Изцяло покрит от горния етаж – гаранция за топлина и уют
🚧 Строителство:
Начало: 10.2025 г.
Срок на завършване: 26 месеца
Сграда със стоманобетонна монолитна конструкция
Зидове: тухли четворки и единични
Изолации: топлоизолация на всички външни стени, тераси и подпокривни пространства; хидроизолация на покрива
Фасада: модерна визия с релефни водоотблъскващи бои
Дограма: 5-камерен PVC профил със стъклопакет и нискоемисионно стъкло
Покрив: битумни керемиди
Асансьор: механичен, до нивото на гаражите
Паркиране: подземни гаражи и паркоместа
🔧 Степен на завършеност – БДС:
Стени – машинна мазилка
Тавани – гипсова шпакловка
Подове – шлайфан бетон (балкони – гранитогрес)
Мокри помещения – подготвени за фаянс и теракота
Входна врата – интериорна
Вътрешни врати – не са монтирани
Електроинсталация – завършена, с апартаментно табло
ВиК – напълно изградена, със затапени изводи
Отопление – изградена система за топлофикация (без радиатори)
✅ Предимства:
Бутикова сграда с ограничен брой апартаменти
Отлична локация, на минути от метрото и центъра
Просторен апартамент, подходящ за голямо семейство
Сигурна инвестиция с висока стойност във времето
Оферта № 968
Детайли
-
№ на имот AML-968
-
Цена €270,000/528,074 лв.
-
Квадратура 139 m²
-
Спални 3
-
Стаи 4
-
Година на строеж 2027
-
Тип имот 4-стаен
-
Етаж 4
-
Етажи 7
-
Обзавеждане Необзаведен
-
Вид строителство Тухла
-
Цена кв.м. 1942
-
Ново строителство Да
-
Балкони (бр.) 1
-
Баня с тоалетна (бр.) 2
Лихвен калкулатор
Изчислете вашите месечни ипотечни плащания бързо и лесно с нашия лихвен калкулатор. Въведете общата сума на заема, първоначалното плащане, лихвения процент и срока на заема, за да получите точна прогноза за вашите месечни разходи.
-
Първоначално плащане
-
Размер на заема
-
Месечно плащане
Това е примерен калкулатор. За индивидуална оферта се свържете с нас!
- Ели Георгиева
- egeorgieva@zaimota.com
- 0879563102
Подобни имоти
Тристаен южен апартамент в затворен бутиков комплекс до входа на метростанция в град София
- €257,000/502,648 лв.
- ID: AML-837
- Стаи: 3
- Легла: 2
Четиристаен апартамент в затворен бутиков комплекс в ж.к. Обеля, град София
- €295,000/576,970 лв.
- ID: AML-835
- Стаи: 4
- Легла: 3
Апартамент с усещане за къща в затворен комплекс до метростанция в град София
- €115,000/224,920 лв.
- ID: AML-943
- Стаи: 2
- Легло: 1
Чудесен апартамент с две спални в луксозна сграда до бул. Константин Величков в столицата
- €205,405/401,737 лв.
- ID: AML-1133
- Стаи: 3
- Легла: 2
3mo Амалтея продава двуетажна къща в град Костинброд
- €358,000/700,187 лв.
- ID: AML-188
Тристаен апартамент с функционално разпределение в нова сграда в ж.к. Люлин, град София
- €171,800/336,012 лв.
- ID: AML-610
- Стаи: 3
- Легла: 2
Contact me




