Инвестиционен имот в затворен луксозен жилищен комплекс до входа на метростанция Обеля в град София
- €512,000/1,001,385 лв.
- AML-838
- ID на оферта
- Инвест. проекти
- Тип имот
- Тухла
- Вид строителство
- 2418
- Цена кв.м.
- 2026
- Година на строеж
Описание
3mo Амалтея с вълнение Ви представя възможност, която съчетава стойност, смисъл и визия!
Детски център с капацитет до 24 места, разположен в сърцето на уютен, затворен бутиков комплекс. Това ще е място с мисия, където детските усмивки ще изпълват пространството, а всяка идея за развитие ще срещне подкрепа от среда, създадена с грижа и любов към най-милото ни – децата! Намира се на няколко крачки от входа на метростанция „Обеля“, в динамичен и развиващ се район с млада, семейна общност и стабилно търсене на образователни и детски услуги. Обявената цена е без ДДС.
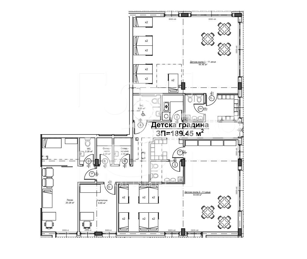
Имотът е с чиста площ от 189,45 кв.м., височината на таваните е 5 метра, с усещане за простор и светлина. Разположен е на партер, което гарантира видимост, разпознаваемост и директна връзка с околната среда. Разполага с дворно място от 269,94 кв.м.,което е изключително подходящо за оформяне на външна детска площадка, спортна зона или образователни кътове на открито. Обектът се състои от общо тринадесет помещения, както следва:
- две просторни зали за обучение и игра, всяка с обособен спален кът с място за дванадесет легла;
- две помещения с място за гардеробчета;
- четири санитарни помещения;
- две складови помещения;
- кухня;
- здравен кабинет;
- учителска стая.
Имотът се предлага в степен на завършеност по Ваш избор – по БДС, до ключ или напълно оборудван според Вашите бизнес нужди и визия. Идеален е за частна детска градина, образователен център, център за езикови курсове или занималня за деца. Сградата, в която се намира обектът е на етап на строителство: междинни етажи с планирано Разрешение за ползване в края на 2026 година. Зад проекта стои утвърден инвеститор с богат опит и внимание към детайла. Гарантира качество и устойчивост във времето. Благодарение на неговото ноу‑хау, ние Ви представяме не просто помещение, а пространство, което ще остане здраво, красиво и вдъхновяващо за поколенията.
Агенция 3mo Амалтея, заедно с лицензиран по БНБ кредитен посредник, предлага напълно безплатно съдействие за избор на най-изгодния кредит, специално съобразен с нуждите на своите клиенти.
Оферта № 838
Детайли
-
№ на имот AML-838
-
Цена €512,000/1,001,385 лв.
-
Квадратура 212 m²
-
Стаи 15
-
Година на строеж 2026
-
Тип имот Инвест. проекти
-
Етажи 4
-
Обзавеждане Необзаведен
-
Вид строителство Тухла
-
Цена кв.м. 2418
-
Отопление Електричество
-
Ново строителство Да
Лихвен калкулатор
Изчислете вашите месечни ипотечни плащания бързо и лесно с нашия лихвен калкулатор. Въведете общата сума на заема, първоначалното плащане, лихвения процент и срока на заема, за да получите точна прогноза за вашите месечни разходи.
-
Първоначално плащане
-
Размер на заема
-
Месечно плащане
Това е примерен калкулатор. За индивидуална оферта се свържете с нас!
- Аделина Ванчева
- avancheva@zaimota.com
- 0885923239
Подобни имоти
Тристаен южен апартамент в затворен бутиков комплекс до входа на метростанция в град София
- €257,000/502,648 лв.
- ID: AML-837
- Стаи: 3
- Легла: 2
Четиристаен апартамент в затворен бутиков комплекс в ж.к. Обеля, град София
- €295,000/576,970 лв.
- ID: AML-835
- Стаи: 4
- Легла: 3
Апартамент с усещане за къща в затворен комплекс до метростанция в град София
- €115,000/224,920 лв.
- ID: AML-943
- Стаи: 2
- Легло: 1
Чудесен апартамент с две спални в луксозна сграда до бул. Константин Величков в столицата
- €205,405/401,737 лв.
- ID: AML-1133
- Стаи: 3
- Легла: 2
3mo Амалтея продава двуетажна къща в град Костинброд
- €358,000/700,187 лв.
- ID: AML-188
Тристаен апартамент с функционално разпределение в нова сграда в ж.к. Люлин, град София
- €171,800/336,012 лв.
- ID: AML-610
- Стаи: 3
- Легла: 2
Contact me






